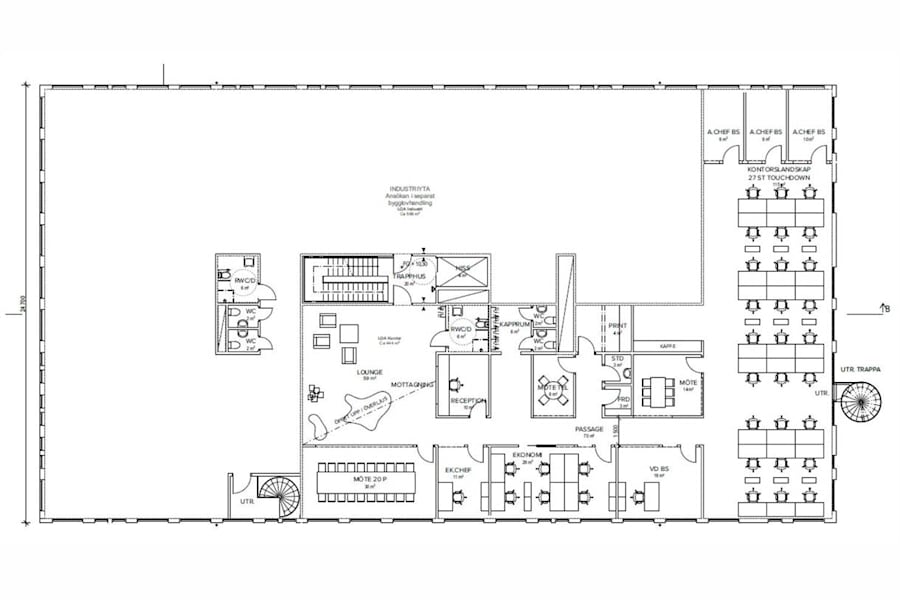
Här finns det nu en unik möjlighet att vara med och anpassa en ny lokal efter era önskemål och behov om 1540-2928 kvm i ett mycket attraktivt område.
Markytan är om totalt 3081 kvm varav 1540 kvm kommer att bebyggas.
Här sitter ni alldeles intill Sisjön handleskluster med goda kommunikationer ut på Söderleden. I området finns god service med träning, restauranger, livsmedelsbutiker, varuhus och mycket mer!
Välkommen till oss på Croisette för ytterligare information och bokning av visning!
Övrig information
Croisette Real Estate Partner är fastighetsbranschen mest expansiva och nytänkande rådgivare och företräder fastighetsbranschens mest progressiva kunder. Bolagets hängivna och engagerade medarbetare erbjuder kvalificerad och långsiktigt hållbar rådgivning inom transaktion, värdering & analys, lokalförmedling, kompetensförsörjning, förvaltning samt försäkringsförmedling. Croisette är rikstäckande i Sverige och på Island med huvudkontor i Malmö.
Ekonomi
Tillträde: Enligt överenskommelse
Omgivning
Omgivning/natur: Omgivningen består av ett handelsområde med mycket liv och rörelse, samt servicemöjligheter i alla dess slag.
Företag i närheten: Kvik, Mattlandet, Elon, Sats, XXL, Clas Ohlson, Willys, Biltema, m.fl...