Nu finns möjlighet att hyra en välplanerad och yteffektiv lagerlokal om totalt 740 kvm, belägen i Boglundsängen – ett av Örebros mest etablerade områden för handel, lager och logistik. Fastigheten erbjuder god tillgänglighet och stora inhägnade rangeytor.
Lager och hantering: Lagerytan har en takhöjd om cirka 5,5 meter och nås via en entré samt två markportar, vilket ger flexibla möjligheter för in- och utlastning. De generösa rangeytorna skapar mycket goda förutsättningar för effektiv logistik och hantering av gods och fordon
Kontor och personalytor: På entréplan finns ett stort separat omklädningsrum med dusch i direkt anslutning till entrén. På övervåningen finns välplanerade kontorsytor samt WC, vilket ger en funktionell uppdelning mellan lager, administration och personalutrymmen.
En mycket välanpassad lokal för verksamheter inom lager, logistik eller lätt industri som söker ett strategiskt läge i Boglundsängen.
Läge – Boglundsängen Boglundsängen ligger cirka två kilometer norr om Örebros centrum och är ett av stadens mest etablerade handels- och verksamhetsområden. Området har ett mycket attraktivt läge med direkt närhet till E18 och E20, vilket ger god tillgänglighet för både transporter och besökare. Hit tar man sig enkelt med bil, buss, cykel och till fots.
Boglundsängen präglas av ett brett utbud av handelsfastigheter, bilhandelsanläggningar, serviceverksamheter samt kontor, och är ett av Örebros största kommersiella nav.
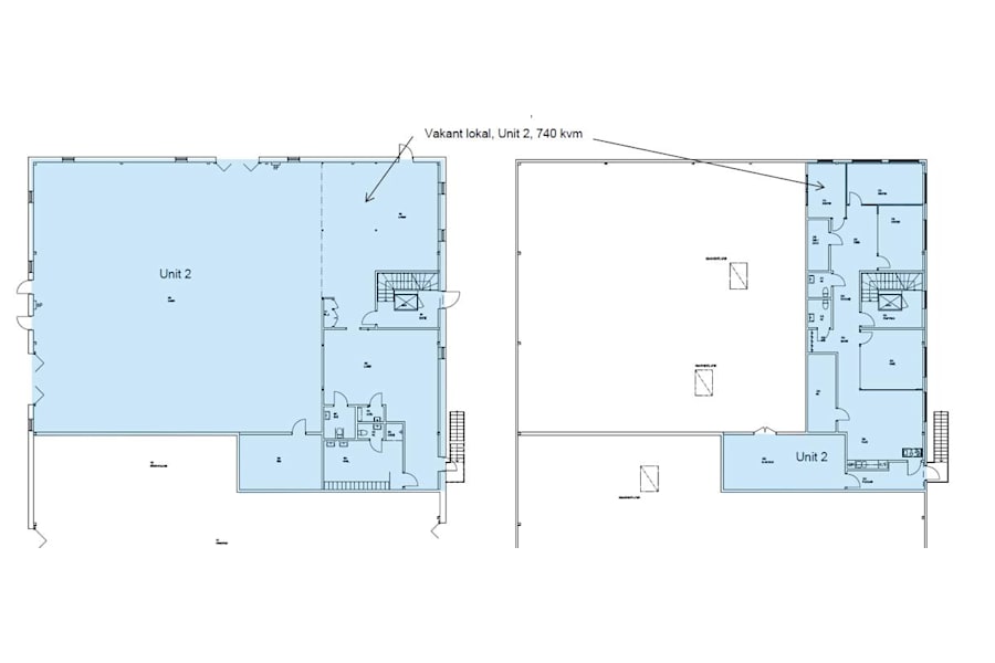
Ytor/Planlösning
Se bland bilder/PDF.
Ekonomi
Kontraktlängd: Förhandlingsbart
Kontrakttyp: Förstahandskontrakt
Tillträde: Omgående
Utförande
Fastighetsbeteckning: Däcket 1
Byggår: 2012
Våningsplan: 1 av 2
Takhöjd: 5,5 m
Omgivning
Omgivning/natur: Boglundsängen cirka 2 km från centrala Örebro. Väletablerat handels- och verksamhetsområde med utmärkt tillgänglighet till E18 och E20 samt goda kommunikationer.
Företag i närheten: Swedol Logistikcenter AB, ITS Logistikpartner AB, Industriprodukter i Örebro AB
Parkeringsmöjligheter/garage: Stora uppställningsytor på inhägnat område