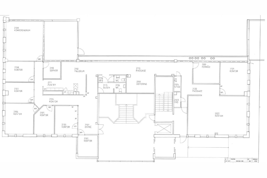
Nu finns en ledig kontorslokal i det centrala handelsområdet i Sisjön. Kontoret är beläget på bottenplan och det finns möjlighet att anpassa kontorsytan efter behov.
I området finns god service med träning, restaurang, livsmedelsbutiker, varuhus och mycket mer! Det är fri parkering.
Övrig information
Croisette Real Estate Partner har erhållit förmedlingsuppdrag avseende lokalen som beskrivs i detta informationshäfte. Informationen är till största del inhämtad från Fastighetsägaren och eller Hyresgästen. Croisette AB och dess dotterbolag (”Croisette”) ansvarar inte för riktigheten i informationen. All information som är av relevans skall kontrolleras av en eventuell hyresgäst och varken Fastighetsägaren, Hyresgästen eller Croisette kan hållas ansvarig vid felaktigheter i detta informationshäfte.
Ekonomi
Tillträde: Enligt överenskommelse
Utförande
Våningsplan: 1
Omgivning
Omgivning/natur: Intill handelsområdet finner du Sisjö GK
Företag i närheten: SATS, Stadium, Nordea, Handelsbanken, Willys, Blomsterlandet, Claes Ohlsson, BAUHAUS
Parkeringsmöjligheter/garage: I området finns det gott om parkeringsmöjligheter