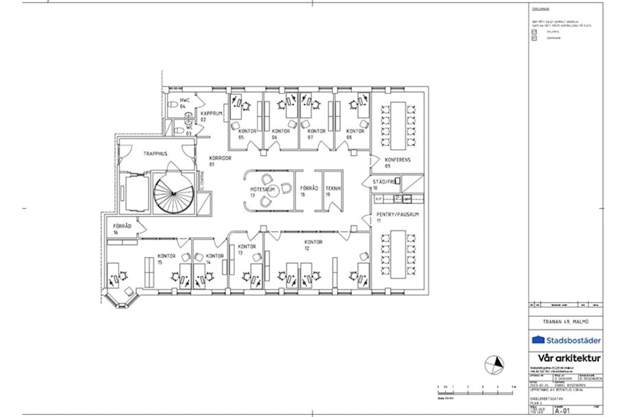
Nu har ni möjlighet att hyra ett kontor i centrala Malmö till en förmånlig hyra. Kontoret erbjuder idag en blandad planlösning med både enskilda rum, kontorslandskap och mötesrum. Då den använts för mottagning idag finns i anslutning till entrén en liten väntyta för besökare. Självklart kan kontoret byggas om ifall nuvarande inte överensstämmer med ert företags behov.
Lägesmässigt kan detta inte bli smidigare. Kontoret ligger precis runt hörnet från Gustav Adolfs Torg där alla bussförbindelser finns tillgängliga. Men för den som är bilburen finns det även ett garage i fastighetens källare.
Det är dessvärre inte möjlighet att ha en icke momsad verksamhet här.
Varmt välkommen att kontakta mig för mer information och en visning!
Bekvämligheter
Det centrala läget gör att man har nära till all tänkbar service såsom butiker och restauranger. Malmös populära "Lilla Torg" med stort utbud av lunchrestauranger ligger precis intill.
Omgivning
Gamla Väster i Malmö ligger i stadskärnan precis mellan gågatan och den vackra parken Kungsparken. Här har man både stadens puls och rogivande grönområden precis runt hörnan.
Kommunikationer
Hit kommer man enkelt både med buss, tåg, ciytunneln eller bil. Gustav Adolfs Torg med stadens alla busslinjer ligger precis runt hörnet. Kommer man via Centralstationen eller den nya citytunneln tar promenaden genom stan endast ett par minuter. Bilister parkerar enklast i garaget som ligger i fastighetens källare och med hiss rakt upp till våningsplanet, här går det bra att köpa månadskort för parkering.