Välkommen till en ljus och representativ kontorslokal om cirka 220 m² i en karaktärsfull tegelbyggnad på Fabriksgatan 8. Här erbjuds en modern och välplanerad arbetsmiljö i ett attraktivt centralt läge där byggnadens industriella karaktär kombineras med funktionella och flexibla kontorsytor.
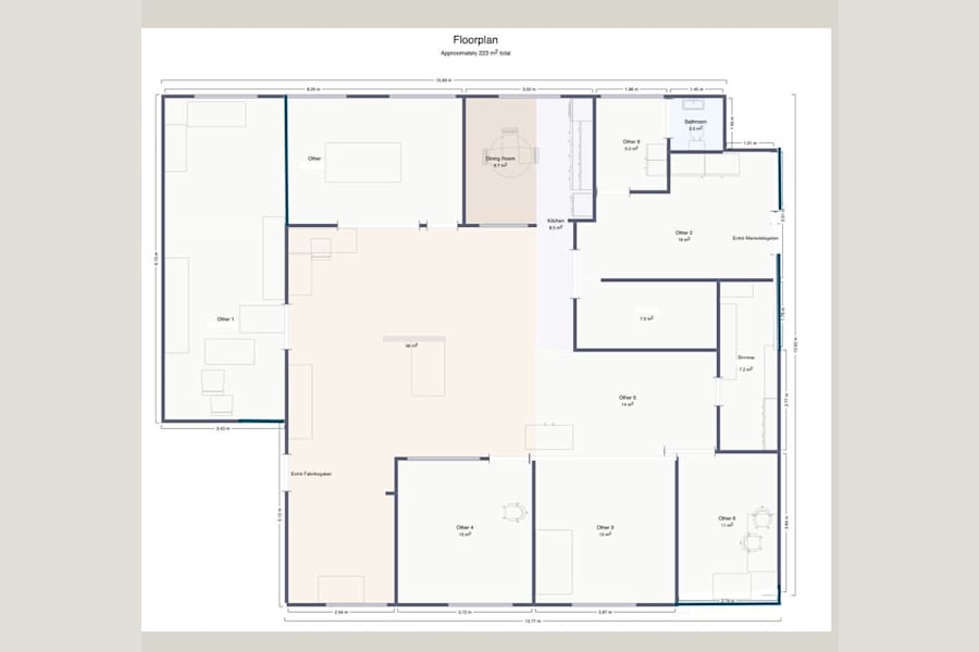
Lokalen är belägen på våning två och har en generös takhöjd om cirka 2,6 meter samt stora fönsterpartier som ger ett fint ljusinsläpp och en luftig arbetsmiljö. Planlösningen är effektiv och passar flera typer av verksamheter. Här finns fyra separata kontorsrum som lämpar sig för enskilt arbete eller möten, en öppen gemensam yta för samarbete eller lounge samt ett större kontorsrum som kan användas som konferensrum, studio eller projekt-/produktionsyta.
I lokalen finns även kök med god plats för personal samt ett praktiskt förråd för förvaring av material och utrustning. Lokalen har dessutom dubbla entréer från både Fabriksgatan 8 och Mariedalsgatan 5.
För verksamheter med behov av logistik finns en lastport i direkt anslutning till fastighetens lasthiss, vilket gör leveranser och transporter smidiga.
Välkommen att kontakta oss för mer information eller för att boka en visning.
Omgivning
Omgivning/natur: Fastigheten ligger i centrala Borås med närhet till både stadsliv och grönområden. På cirka fem minuters promenad nås Stadsparken, ett uppskattat grönområde med promenadstråk längs Viskan, perfekt för lunchpromenader eller avkoppling under arbetsdagen. Kombinationen av centralt läge och närhet till natur skapar en trivsam arbetsmiljö för både medarbetare och besökare.
Företag i närheten: Området kring Fabriksgatan är ett etablerat företagsområde i centrala Borås där flera verksamheter inom service, bemanning, handel och kontor är verksamma. I direkt närhet finns bland annat NearYou som arbetar med bemanning och rekrytering. I området finns även företag som Topborn, Funktionsfabriken, CH Robinson samt Pedab, vilket skapar en dynamisk och affärsdriven miljö med goda möjligheter till samarbeten och nätverkande mellan företag.
Parkeringsmöjligheter/garage: I direkt anslutning till fastigheten finns goda parkeringsmöjligheter. Parkeringsområdet Mariedal ligger precis framför fastigheten och erbjuder smidig parkering för både anställda och besökare. Dessutom finns parkeringshuset Vulkanus endast några minuters promenad bort, vilket ger ytterligare parkeringsalternativ i området
Närservice: I närområdet finns ett brett serviceutbud med restauranger, träningsmöjligheter och samhällsservice. I närheten finns bland annat restauranger som Chihaya Sushi och Restaurang Jasmine. För träning finns gymmet Nordic Wellness samt bad- och träningsanläggningen Stadsparksbadet. I området finns även vårdservice såsom Borås jourcentral och Folktandvården Södra Torget, vilket bidrar till en komplett servicebild för både anställda och besökare.