Nu finns möjligheten att etablera er verksamhet på en av Södermalms mest strategiska adresser. På Fatbursgatan 1, med direkt anslutning till Stockholm Södra, erbjuder vi en yteffektiv och modern kontorslokal om 319 kvm med fantastiskt ljusinsläpp och utsikt över Fatbursparken.
Översikt: Modernt kontor: Genomgående fint skick med bra installationer. Social kärna: Lokalen binds samman av en stor loungedel, centralt i lokalen. Ljus och rymd: Tät fönstersättning ger ett fantastiskt ljusinsläpp. Flexibilitet: Yteffektiv och öppen modern planlösning som kan anpassas. Toppenläge: Invid Medborgarplatsen och Stockholm Södra. Kommunikativt nav: Oslagbara förbindelser för både anställda och kunder. Faciliteter: Garage & cykelparkering med laddmöjligheter i huset. Dusch finns i lokalen.
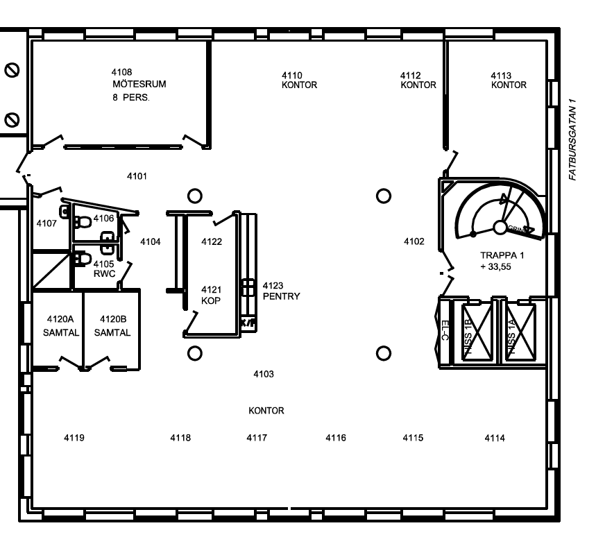
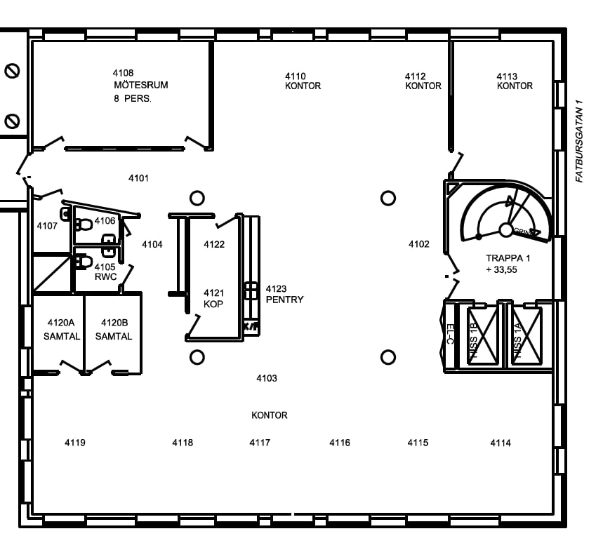
En arbetsplats att trivas på: Välkommen upp till våning 4. Här möts ni av en representativ och flexibel yta skapad för dagens moderna arbetssätt. Planlösningen är öppen och inbjudande, vilket främjar samarbete och kreativitet, samtidigt som det finns utrymme för fokus. Den täta fönstersättningen fyller lokalen med dagsljus och skapar en energi som känns i hela kontoret. Lokalen håller ett mycket fint skick med bra tekniska installationer, vilket gör att ni kan flytta in och komma igång direkt. Tillträde sker hösten 2026, vilket ger er god tid att planera er nästa fas.
Välkommen att kontakta oss redan idag för att boka visning!
Ekonomi
Kontraktstyp: Första hand Kontraktslängd: 3 år eller längre Uppvärmning: 120 Kyla: 100 Deposition: 6 månadshyror bankgaranti eller deposition Miljö: 15
Bekvämligheter
Cykelparkering, Garage, Hiss, Parkering: Separat kö, Internet: Fiber finns i huset, Mitt i Södermalms puls Att arbeta på Fatbursgatan 1 innebär att ni har hela Södermalms utbud utanför porten. Här varvas trendiga caféer och prisbelönta restauranger med grönområden som Tantolunden för en löptur eller lunchpromenad. I huset finns bekvämligheter som garage och en cykelparkering utrustad med laddstolpar – perfekt för den hållbara pendlaren.
Kommunikationer: Läget är optimalt för företag med medarbetare spridda över Storstockholm. Med Stockholm Södras pendeltågsstation som granne och Medborgarplatsens samt Mariatorgets tunnelbana några minuter bort, är resan hit smidig oavsett varifrån ni kommer.
Utförande
Byggår: 1990 Renoveringsår: 2022 Våningsplan: 3 Ventilation: Mekanisk till och frånluft samt kyla
Kommunikationer
Buss: Flertalet bussar stannar utanför fastigheten Pendeltåg: Södra Station train: Södra Station Tunnelbana: Mariatorget