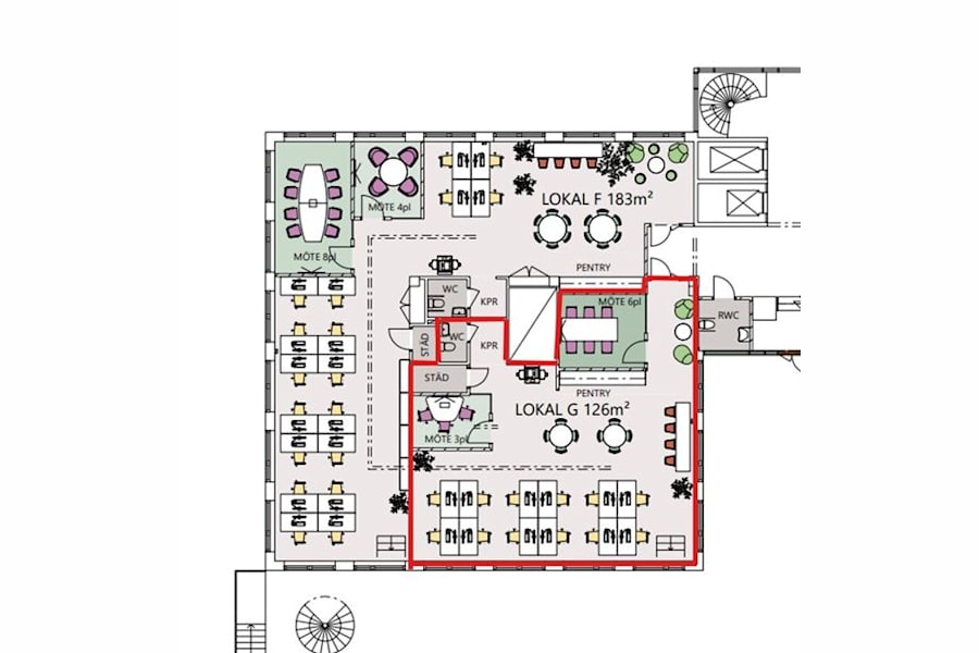
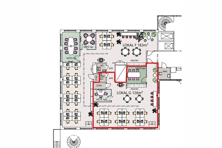
Välkommen till en ljus och modern kontorslokal om 126 kvm med en smart och flexibel planlösning. Lokalen erbjuder två konferens- eller mötesrum samt en öppen yta som passar perfekt för arbetsplatser, lounge eller kreativ samvaro.
Som hyresgäst får du dessutom tillgång till en trevlig terrass idealiskt för paus, informella möten eller eftermiddagsfika. I fastigheten finns även gym samt restaurangen HEAT, vilket gör vardagen både smidigare och mer trivsam.
Detta är en utmärkt lokal för företag som söker ett modernt kontor med bra serviceutbud i direkt anslutning.
Ytor/Planlösning
Öppen eller rumsindelat
Bekvämligheter
Fastigheten erbjuder flera bekvämligheter för hyresgäster, bland annat restauranger som Heat, med husmanskost, och Enot, som serverar sushi, bowls och varmrätter, samt ett gym för träning under arbetsdagen.
Omgivning
Det jättelika naturreservatet har du in på knuten men även närheten till Arlanda, Bromma och centrala Stockholm.
Kommunikationer
Här sitter du i ett utmärkt kommunikationsläge. Med bil har du närhet till både E4 och E18, vilket gör det enkelt att ta sig till Stockholm City och omgivande områden. Kontoret ligger cirka 350 meter från Akalla tunnelbanestation, och resan till T Centralen tar ungefär 20 minuter. Från Akalla finns också goda bussförbindelser mot bland annat Spånga, Mörby, Sollentuna, Vällingby och Jakobsberg. För den som cyklar finns cykelbanor i alla riktningar, och hyresgäster har tillgång till cykelparkering.