Nu kan vi presentera en ledig lager och kontorslokal på Berga i Helsingborg.
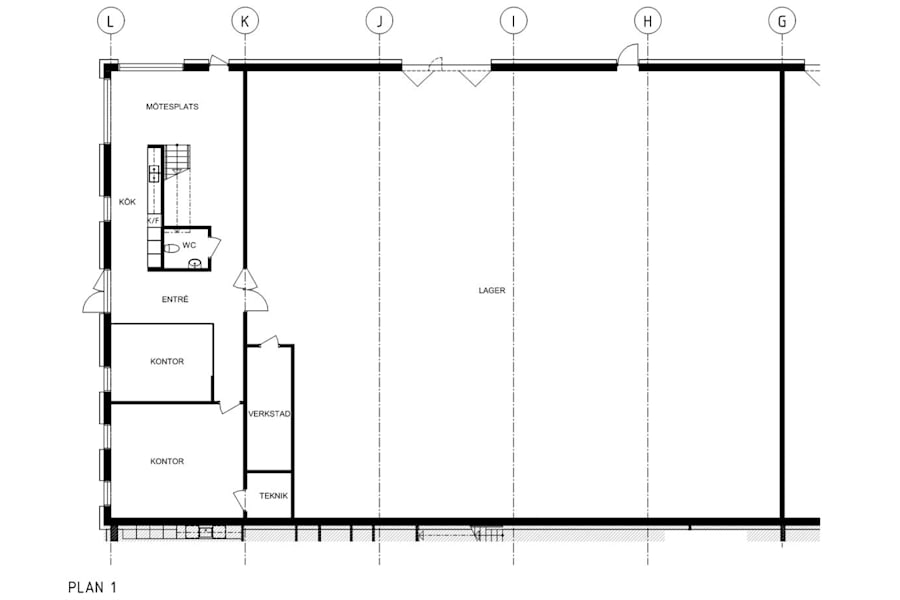
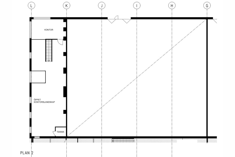
<strong>Lagerlokal med tillhörande kontorsdel i två plan</strong>
Lokalen erbjuder en funktionell och modern planlösning för en effektiv arbetsmiljö.
Två cellkontor
Större öppet kontorslandskap
Modernt kök med tillhörande matplats
Perfekt för verksamheter som vill kombinera enskilda arbetsrum med öppna ytor.
<strong>Lager</strong>
Området är inhägnat.
Kontakta oss gärna för att boka in en visning!
Byggår: 2016
Planlösning: Kontor om 2 plan och ett öppet lager.
Omgivning
Företag i närheten: Audio Pro, Puma, Bergabil, TR Electronics.
Parkeringsmöjligheter/garage: Parkering finns på fastigheten
Närservice: Ca 2,5 km till Väla centrum och 5 km till Helsingborgs centrum