Logga in
technopolistechnopolis
  • Lediga lokaler
  • Stockholm län
  • Södertälje kommun
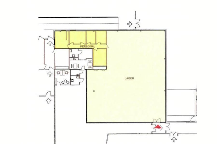
Genetaleden 7 - Planlösning
Genetaleden 7 - image - 1

Genetaleden 7

Lagerlokal på Vasa Handelsplats

151 59 Södertälje
Lager / Logistik
Storlek
470 m²
Hyra
Kontakta hyresvärd
Tillträde
Enligt överenskommelse
Beskrivning
Ledig lokal på totalt ca 470 kvm. De gulmarkerade ytorna på planritningen är de som ingår.

Kontakta Svenska Handelsfastigheter

Svenska Handelsfastigheter

Liknande lokaler

  • Regementsgatan 18 - image - 0

    Regementsgatan 18 360 - 734 m²

    151 66 Södertälje
    Industri / Verkstad
    Lager / Logistik
    Nyproducerade verksamhetslokaler med möjlighet till inhägnad uppställningsyta!
  • Wedavägen 7B - Wedavägen 7b, 450 kvm

    Wedavägen 7B 450 m²

    152 42 Södertälje
    Industri / Verkstad
    Lager / Logistik
    Lagerlokal om 450 kvm i Weda – Södertälje
  • Wedavägen 7 - image - 0

    Wedavägen 7 450 m²

    152 42 Södertälje
    Lager / Logistik
    Kontor
    Lagerlokal i Weda uthyres!
  • Wedavägen 7 - Wedavagen-7-450-kvm-1

    Wedavägen 7 450 m²

    152 42 Södertälje
    Butik
    Industri / Verkstad
    Lager / Logistik
    Wedavägen 7
  • Visa alla lediga lokaler

    Stockholm

    • Lediga Kontorslokaler i Stockholm
    • Lediga Co-work i Stockholm
    • Lediga Lagerlokaler i Stockholm
    • Lediga Industrilokaler i Stockholm

    Göteborg

    • Lediga Kontorslokaler i Göteborg
    • Lediga Co-work i Göteborg
    • Lediga Lagerlokaler i Göteborg
    • Lediga Industrilokaler i Göteborg

    Malmö

    • Lediga Kontorslokaler i Malmö
    • Lediga Co-work i Malmö
    • Lediga Lagerlokaler i Malmö
    • Lediga Industrilokaler i Malmö
    Om
    Om ossVad är Portally?Q&AKontaktPortallyPodden
    Information
    IntegritetVillkorCookie PolicyFörmedlingsvillkorBloggSidkartaFörnya Cookies
    Följ oss
    Instagram Linkedin