Välkommen till denna unika industrifastighet på 4 428 kvm, strategiskt belägen i Södertälje med endast några minuters körsträcka till E4:an. En perfekt plats för verksamheter inom logistik, produktion eller lagerhantering som söker stora ytor, kraftig elkapacitet och effektiv lastning.
Egenskaper och fördelar
Total yta: 4 428 kvm
Takhöjd: upp till hela 15,7 meter – idealiskt för höglager eller specialanpassad produktion
Elkapacitet: imponerande 3 000 A, redo för krävande drift
Lastning: smidig access via lastkaj och moderna lastportar med höjdjustering och tätning
Bärighet: golv med hög lasttålighet, anpassat för tung industri och maskinell verksamhet
Läge och omgivning
Fastigheten är belägen i ett väletablerat industriområde med snabb anslutning till E4:an, vilket ger utmärkta logistikmöjligheter mot både Stockholm, Mälardalen och södra Sverige. I närområdet finns starka branschaktörer som Ramirent, Swedol och Autoexperten, vilket bidrar till ett professionellt och attraktivt företagsklimat.
Sammanfattning
Detta är en modern och robust industrifastighet med alla förutsättningar för effektiv verksamhet – från kraftig infrastruktur till flexibel användning. Lokalen kombinerar funktionalitet, tillgänglighet och styrka i en och samma helhet.
Välkommen på visning – här kan din verksamhet ta nästa steg!
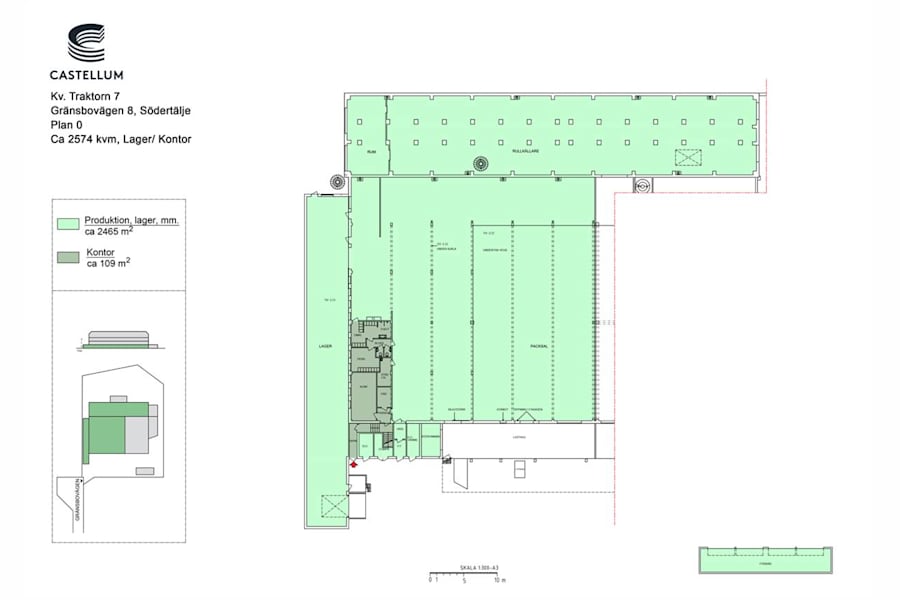
Ytor/Planlösning
Ytan är fördelad på lager, produktion, personalytor och kontor.
Övrig information
Fastigheten är en industrifastighet belägen strax utanför Södertälje i Moraberg. Den ligger nära E4:an med bra skyltläge och är en singel fastighet med inhägnat markområde. Bärighet: Terassbjälklag: 10 kN/kvm Golv i ställverk: 5 kN/kvm Golv i presshall: 15 kN/kvm Golv i manöverrum: 5 kN/kvm (tillika kontorsytorna och omklädningsrum på plan 1) Golv i fläktrum: 5 kN/kvm Byggnadsbeskrivning: Stomme: Stål och betong Fasader: Tegel och puts Yttertak: Papp Uppvärmning: Luftburen fjärrvärme Ventilation: Mekanisk till- och frånluft med värmeåtervinning och kyla.
Ekonomi
Tillträde: Enligt överenskommelse.
Omgivning
Omgivning/natur: Fastigheten Traktorn 7 är en industri/lager lokal belägen i Södertälje. Södertälje är beläget mellan Strängnäs, Nyköping och Stockholm. Alltså enkelt att pendla från många olika håll