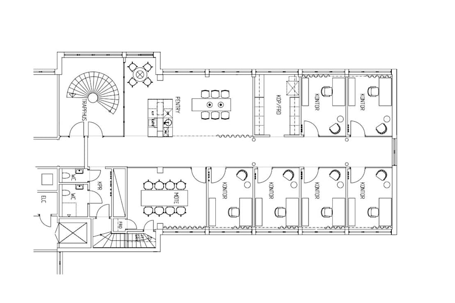
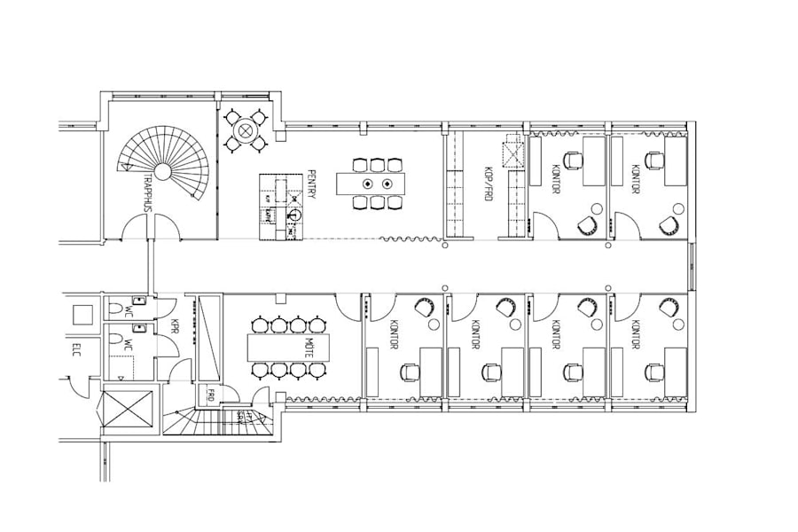
Modernt kontor med smart planlösning och ljusa ytor: Välkommen till ett kontor som kombinerar funktion och stil! Här möts du av en öppen och inbjudande yta med generöst ljusinsläpp och moderna materialval. Planlösningen erbjuder flera separata kontorsrum för fokusarbete, ett rymligt mötesrum för kreativa diskussioner samt en trevlig lounge- och pentrydel som skapar naturliga ytor för paus och samvaro.
Lokalen är utformad för att ge en effektiv arbetsmiljö med gott om plats för både individuellt arbete och samarbete. Glaspartier och genomtänkt design ger en känsla av rymd och transparens, medan detaljer som stilrent golv och modern belysning förstärker den professionella atmosfären.
Perfekt för företag som söker en representativ arbetsplats med närhet till kommunikationer, service och stadens puls.
Välkommen till oss på Croisette för mer infomation och bokning av visning!
Övrig information
Croisette Real Estate Partner har erhållit förmedlingsuppdrag avseende lokalen som beskrivs i detta informationshäfte. Informationen är till största del inhämtad från Fastighetsägaren och eller Hyresgästen. Croisette AB och dess dotterbolag (”Croisette”) ansvarar inte för riktigheten i informationen. All information som är av relevans skall kontrolleras av en eventuell hyresgäst och varken Fastighetsägaren, Hyresgästen eller Croisette kan hållas ansvarig vid felaktigheter i detta informationshäfte.
Ekonomi
Tillträde: Enligt överenskommelse
Hyresinformation: Kontakta annonsören
Omgivning
Omgivning/natur: Lokalen ligger centralt på Hisingen, nära Backaplan och Kvillebäcken. Här finns goda kommunikationer, närhet till grönområden som Hisingsparken och flera lunchrestauranger samt träningsanläggningar.
Företag i närheten: Palmung Mellin Fastigheter, Nordic Wellness, Hornbach, mfl.
Parkeringsmöjligheter/garage: Stor parkering med elbilsladdare.