Nyproduktion, flexibel kommersiell fastighet i Tumba – anpassas efter er verksamhet
Nu ges möjlighet att hyra en modern och kommersiell fastighet i centrala Tumba, skräddarsys för verksamheter inom industri, lager, logistik och produktion. Med färdigt bygglov och hög flexibilitet i utformningen erbjuds en unik chans att vara med från start och skapa en lokal anpassad efter både nuvarande och framtida behov.
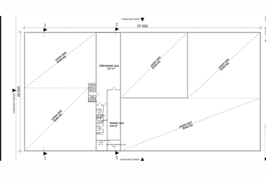
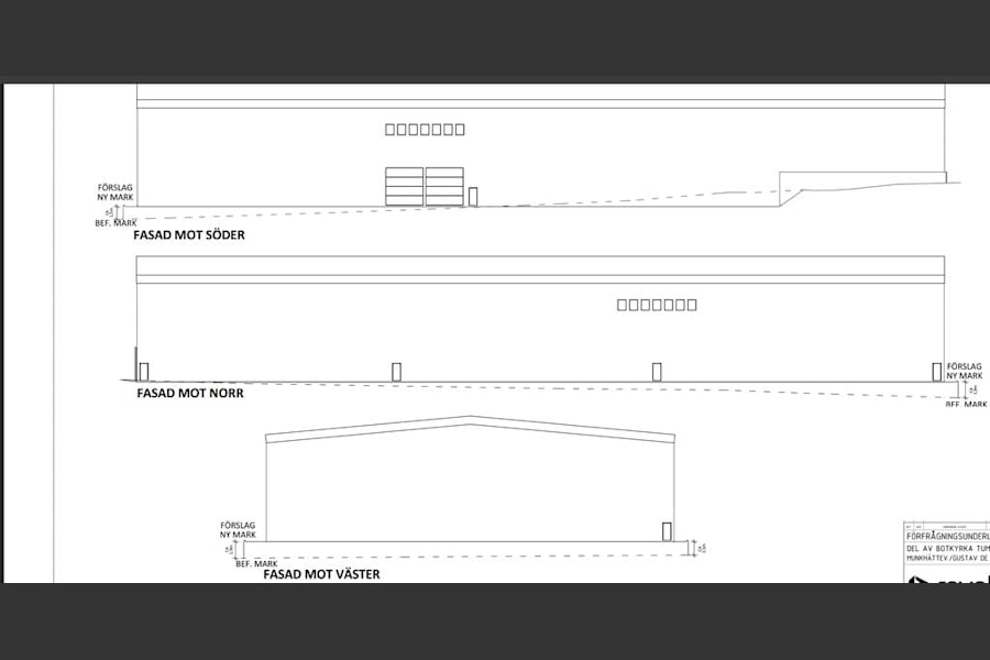
Fastigheten omfattar cirka 5 000–9 000 kvm och kan delas mellan 1–2 hyresgäster. Generösa uppställnings- och rangeringsytor möjliggör effektiva logistikflöden, och en takhöjd om cirka 11 meter ger mycket goda förutsättningar för lagerhållning, produktion och industriell verksamhet med exempelvis travers. Lokalen lämpar sig väl för såväl yteffektiva lösningar som kombinerad användning av lager, logistik och kontor.
Ett planerat entresolplan skapar moderna och funktionella personalytor med kontor, kök och lunchrum, mötesrum, WC, dusch- och omklädningsrum samt förråd – allt för en attraktiv, effektiv och trivsam arbetsmiljö.
Fastigheten passar särskilt väl för:
Expansion av befintlig verksamhet
Nyproduktion av industri- eller verksamhetslokaler
Modulära kontors- eller produktionsytor
Kombinerad användning av lager, logistik och kontor
Projektutveckling med möjlighet till uppdelade byggnader
Läget är mycket attraktivt med enkel access till E4/E20 och endast 5 minuters promenad till Tumba Station, en viktig knutpunkt för kollektivtrafiken i södra Stockholm. Med pendeltåg nås Stockholm C på cirka 25 minuter. I närområdet finns kontor, lager, restauranger, gym samt Tumba Centrum med ett brett serviceutbud av butiker, restauranger, bank och apotek. Goda parkeringsmöjligheter finns i direkt anslutning till fastigheten.
Var med och skapa er egen anpassade lokal – här erbjuds en sällsynt möjlighet att hyra en skräddarsydd industribyggnad i ett strategiskt och kommunikationsnära läge.
VISNING KONTAKT - NANCY
Vänligen respektera säljarens / hyresvärdens önskemål om bokad visning.
För mer information eller visning av objektet, hör av er till Locus Advice genom kontaktformuläret eller ring Nancy Lindgren på tel 0720-781904
Växeln är öppen helgfria vardagar mellan 08.30-17.00
Locus Advice tel 08-558 094 40
LOCUS ADVICE
Locus Advice är ett fastighetskonsultbolag med fokus på kommersiella fastigheter och lokaler.
Vi arbetar med
Genom etablerade samarbeten med både stora och små fastighetsägare har vi tillgång till ett stort utbud av lokaler utöver vad vi kan marknadsföra i vår egen regi. Via dessa samarbeten kan vi med stor sannolikhet hjälpa er hitta den lokal ni söker efter.