Sthlm 02 Studion upplevs som den lekfulla och integritetsstarka lillasystern till skyskrapan Sthlm 01, men tro inte för en sekund att hon hamnar i skymundan för det.
Huset för morgondagens behov!
Sthlm 02 Studion är ett hus utformat för gemenskap och nytänkande. Kontoren är anpassade för framtidens arbetsförhållanden.
Huset som är byggt i en komplex miljö – mellan industri och händelsernas centrum – andas ett lugn som bidrar till kreativa tankar och idéer.
Passa på att unna dig gudomliga bakverk, matiga bagels och grymt kaffe i husets café BAK, jobba i loungen eller ta ett möte i konferensrummet.
Njut på takterrassen under eller efter arbetsdagen med en utsikt över Hammarby Sjöstad.
Cykeln kan du parkera i cykelhotellet där omklädningsrum också finns. I Sthlm 04 finns ett gym för alla hyresgäster i Sthlm New.
Sthlm New är ett välkomnande, attraktivt område för innovativa företag och över 8 000 människor kommer att ha sin arbetsplats här.
Ytor/Planlösning
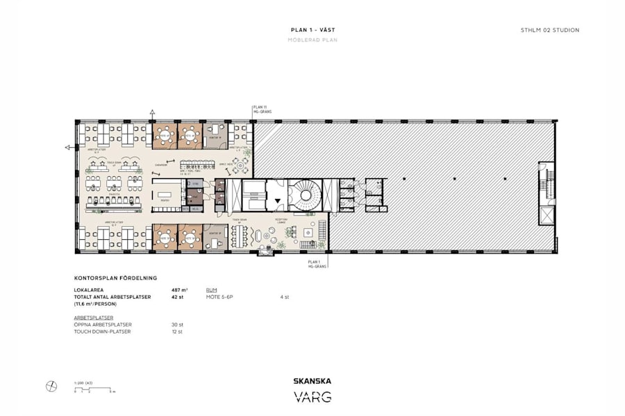
Inflyttningsklara lokaler utifrån stilsäkra designkoncept för snabbare inflyttning med plats för upp till ca 42 arbetsplatser.
Här finns alla möjligheter att forma ert arbetssätt i en elegant och lekfull kontorsmiljö.
Övrig information
Kreativa Stockholm har flyttat söderut! Nu samlas stadens innovativa företag i ett helt nytt distrikt söder om Hammarby kanal – Sthlm New Creative Business Spaces. På denna urbana plats bjuds på en säregen atmosfär av före detta industrihamn, Söders puls, kajliv och lugna skogsområden. Sthlm New representerar sju nya byggnader, där alla har sin egen speciella karaktär. Sthlm New Creative Business Spaces består av totalt 100 000 kvm kontor: Sthlm Seaside – färdigställt Sthlm 03 – färdigställt Sthlm 01 – färdigställt Sthlm 04 – färdigställt Sthlm 02 – färdigställt Sthlm 05 – planerad projektstart 2026 Sthlm 06 – planerad projektstart 2027.
Miljöcertifiering: LEED
Ekonomi
Tillträde: Efter överenskommelse
I bottenvåningen finns café BAK och i grannhuset Sthlm 01 hittar du Sjöstaden Skybar, restaurang med takterrass som drivs av krögaren Niklas Ahlbom och Café NollEttan. I Sthlm 04 finns lunchrestaurangen Tastory.
Utförande
Fastighetsbeteckning: Mårtensdal 19
Byggår: 2023
Våningsplan: 1 av 7
Omgivning
Omgivning/natur: Löpning lockar ut många av Stockholms kontorsarbetare och just här blir det aldrig trångt i spåren. Det finns lite för många alternativ för det. Är du backlöpare? Då väntar Hammarbybacken med sina 93,5 meter över havet. Andra fina löpspår går runt Årstaviken, och vill du verkligen ta ut det där sista finns ett stort utegym vid närbelägna Eriksdalsbadet.
Till sommaren öppnar ett gym i Sthlm 04 för hyresgäster i Sthlm 02 och Sthlm 01.
Företag i närheten: Westander, Nabo, Funkia, Nets, Arrowhead, Goto 10, IIS -Internetstiftelsen i Sverige, Mutate, Softronic, Yggdrasil, Polystar, Propeller, Seenthis och Rhyme
Parkeringsmöjligheter/garage: Garageplatser finns att hyra.