Välkommen till denna hörnlokal med generös takhöjd! Lokalen har entré direkt från gatan och en flexibel planlösning som skräddarsys efter era behov. Lokalen genomsyrar flexibilitet, bekvämlighet och ett utmärkt skyltläge. Kontakta oss idag för att boka en visning och upptäck alla möjligheter som denna lokal har att erbjuda.
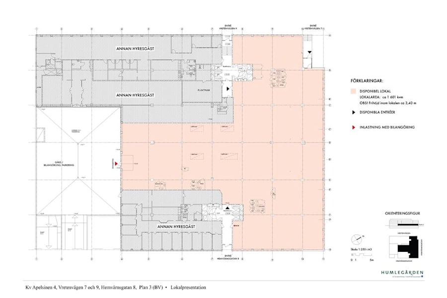
Ytor/Planlösning
Lokalen är designad för mångsidighet och kan anpassas efter era krav, oavsett om det är för smidigt lagerutrymme eller ett lockande showroom. Med en praktisk inlastning direkt in i lokalen blir hanteringen av varor enkel och effektiv. Lokalen har högt i tak och gott om fönster vilket skapar en härlig arbetsmiljö.
Övrig information
Tillträde enligt överenskommelse!
Bekvämligheter
Utöver den mycket uppskattade lunchrestaurangen i fastigheten finns ett rikt och varierat lunchutbud, ett bageri, gym och Pressbyrån i området. Övrigt serviceutbud i form av handel, livsmedelsbutik och apotek finns på bekvämt gångavstånd i Sundbybergs Centrum. Även Solna Centrum kan nås enkelt.
Omgivning
Solna strand är ett strategiskt affärsområde som är under stor utveckling. Området består av en blandning av äldre fastigheter med industrikaraktär till mer moderna kontorslokaler. Ur kommunikationssynpunkt är det en fantastisk knutpunkt. Här finns parkering för både bilar och cyklar och för den som önskar en stunds avkoppling finns sköna promenadvägar efter vattnet alldeles i närheten.
Kommunikationer
I Solna strand finns mycket goda kommunikationer. Solna strands tunnelbanestation nås på någon minut och ett flertal busslinjer trafikerar också området. Till Sundbybergs pendeltågsstation tar det ca 10 minuter att promenera. För den som föredrar att åka bil finns Huvudsta- och Frösundaleden i närheten som ansluter till E4 och E18. Det finns även möjlighet att båtpendla under sommarperioden med båten M/S Hamnskär som går med morgon och eftermiddagstrafik mellan Stockholm City och Solna strand. Humlegården bjuder våra hyresgäster på båtpendlingskort.