Nu finns möjlighet att hyra en rymlig lager- och kontorslokal om totalt ca 3 279 kvm i Hisings Backa, där lokalen kommer att totalrenoveras och anpassas i samråd med ny hyresgäst. Ett utmärkt val för företag inom logistik, e-handel, produktion eller teknisk service med behov av både höglager och moderna kontorsytor.
Lokalens egenskaper:
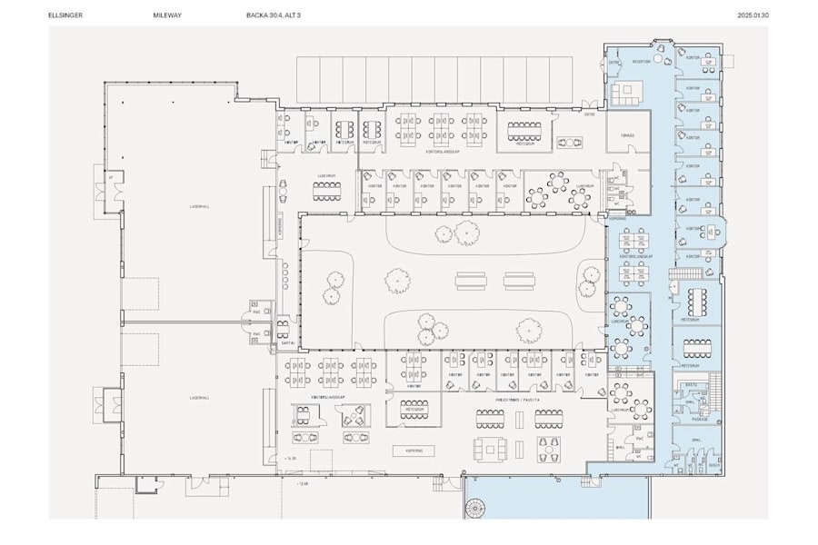
Totalyta ca 3 279 kvm
2 772 kvm höglager med takhöjd ca 10 meter
507 kvm kontor och personalutrymmen
Två markportar i fasad för smidig in- och utlastning
Generös gemensam gårdsyta – goda rangermöjligheter för lastbil
Kontorsentré mot Importgatan
Lokalen totalrenoveras inför tillträde – ytskikt och funktioner uppdateras i dialog med hyresgästen
Tillträde enligt överenskommelse
Kontorsdelen erbjuder:
Blandad planlösning: öppna ytor, separata kontorsrum och mötesrum
Kök, lunchrum och tillgång till gemensam innergård
Omklädningsrum för dam och herr, med dusch och bastu
Läge – strategiskt i Hisings Backa:
Fastigheten ligger i Hisings Backa, ca 7 km från centrala Göteborg, med snabb access till E6 och övriga större trafikleder. Området är ett etablerat kluster för handel, lager, logistik och produktion, med närhet till Stigs Center och Bäckebol Köpcenter där butiker och restauranger finns.Goda kollektivtrafikförbindelser med buss gör läget lättillgängligt även för personal och besökare.
Ytor/Planlösning
Se planritning bland bilder/PDF.
Ekonomi
Kontraktlängd: Förhandlingsbart
Kontrakttyp: Förstahandskontrakt
Tillträde: Enligt överenskommelse
Utförande
Fastighetsbeteckning: Backa 30:4
Byggår: 1975
Renoveringsår: 2025
Takhöjd: 10 m
Omgivning
Företag i närheten: Volvo Car, Swedol, Dagab, PostNord, BGM Logistics AB och Budbee
Parkeringsmöjligheter/garage: Gott om parkeringsplatser för personal och kunder