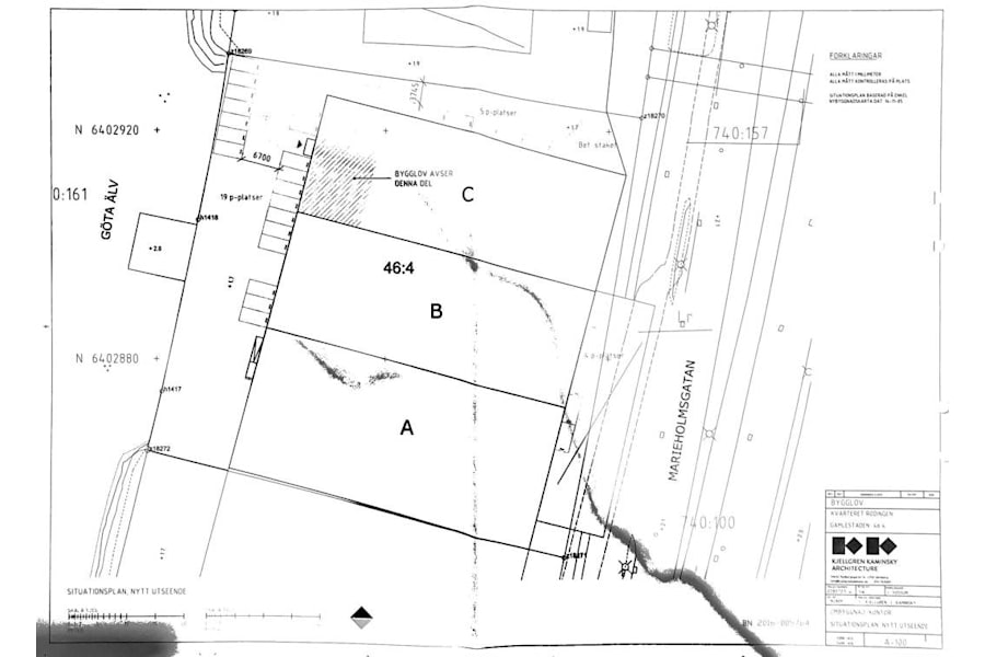
Denna flexibla industrifastighet omfattar totalt cirka 2 750 kvm lager- och industriyta, fördelad på tre sammanhängande hallar med god takhöjd och flera stora portar som möjliggör effektiva flöden för industri-, produktions- och logistikverksamhet.
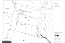
Hall C omfattar cirka 750 kvm, hall B cirka 1 200 kvm och hall A cirka 1 000 kvm lager- och industriyta. I den centrala delen finns traverskapacitet, vilket skapar ytterligare flexibilitet och breddar användningsmöjligheterna.
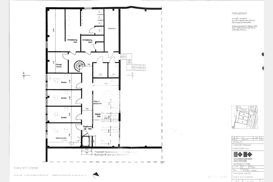
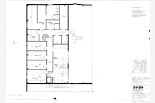
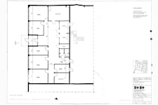
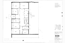
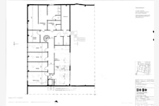
Till lagerytorna hör totalt cirka 500 kvm kontor, placerade i anslutning till hall A och fördelade på två plan. Kontorsytorna utgör ett naturligt nav för verksamheten och erbjuder en funktionell mix av arbetsplatser, mötesrum och personalutrymmen.
Planlösningen ger god överblick mot lagerytorna och kan anpassas för såväl administrativa funktioner som ledning, projektering eller kundmottagning.
Fastigheten erbjuder generösa ytor även utomhus genom en inhägnad gård i direkt anslutning till byggnaden, vilket ger god funktion för uppställning, parkering och dagliga transporter. Helheten präglas av en tydlig struktur med väl samordnade lager‑, industri‑ och kontorsytor som tillsammans skapar goda förutsättningar för en effektiv och långsiktig verksamhet.
Välkomna till oss på Croisette för mer information och bokning av visning!
Övrig information
Croisette Real Estate Partner har erhållit förmedlingsuppdrag avseende lokalen som beskrivs i detta informationshäfte. Informationen är till största del inhämtad från Fastighetsägaren och eller Hyresgästen. Croisette AB och dess dotterbolag (”Croisette”) ansvarar inte för riktigheten i informationen. All information som är av relevans skall kontrolleras av en eventuell hyresgäst och varken Fastighetsägaren, Hyresgästen eller Croisette kan hållas ansvarig vid felaktigheter i detta informationshäfte.
Ekonomi
Kontraktlängd: Långtidskontrakt
Kontrakttyp: Förstahandskontrakt
Tillträde: Enligt överenskommelse
Hyresinformation: Kontakta annonsören
Samtliga lokaler i fastigheten är nåbara via egen markport, vilket skapar stor flexibilitet för drift, logistik och lastning.
Utförande
Fastighetsbeteckning: Gamlestaden 46:6
Omgivning
Omgivning/natur: Fastigheten är belägen i ett verksamhetsområde med en öppen struktur och ligger i direkt anslutning till älven, vilket ger området ett ovanligt fritt läge för denna typ av bebyggelse. Omgivningen präglas av industri- och verksamhetsfastigheter med inslag av vattennära stråk som ger området rymd och tydlig karaktär, utan att påverka den funktionella tillgängligheten.
Företag i närheten: Marieholm präglas av en blandning av industri-, lager- och verksamhetsföretag, vilket skapar ett levande och etablerat företagsklimat. Området är väl anpassat för verksamheter med behov av funktionella ytor och effektiva flöden.