5800 kvm logistiklager iHögsbo (gamla Pripps-Fastigheten), Göteborg
Nu finns möjligheten att hyra lager/logistikytor på Blå Tomten (gamla Pripps-Fastigheten) i Göteborg.
Strategiskt belägna lokaler utmärkt för transportverksamhet.
RWC och WC: Finns i anslutning till lokalen.
Finns möjlighet att även hyra omklädningsrum, pentry och kontor i samma byggnad.
Finns möjlighet att hyra uppställningsplatser för lastbilar.
Personal- och gästparkering finns i anslutning till fastigheten.
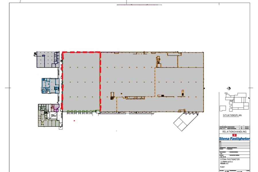
Lokalinformation
Lageryta ca 5800 m²
Takhöjd: 6,5 meter.
Maximal golvlast: 2 ton/m².
Portar:
1 markport (4,5 m hög, 4,20 m bred).
7 vanliga portar (3 m hög, 2,40 m bred).
Fördelar
Strategiskt läge med närhet till Göteborgs hamn och stora transportlederna E6/E45.
Flexibilitet lager med möjlighet att hyra hela eller dela ytan till 2 300 m² respektive 3 500 m².
Fastigheten
Blåtomten, tidigare känd som Pripps-fastigheten, är en ikonisk del av Göteborgs industriella arv.
Omgivning och service
Fastigheten ligger intill köpcentrum 421 med utbud av butiker, livsmedel och restauranger.
Kommunikation
J A Pripps gata i Högsbo är väl anslutet med kollektivtrafik, vilket gör det enkelt att ta sig runt i Göteborg. Flera busslinjer passerar området, inklusive linjerna 758, 82 och 95, som erbjuder frekventa avgångar och smidiga förbindelser till stadens centrum och andra stadsdelar. Dessa linjer gör det enkelt för både boende och besökare att nå viktiga knutpunkter som Marklandsgatan och Frölunda Torg.