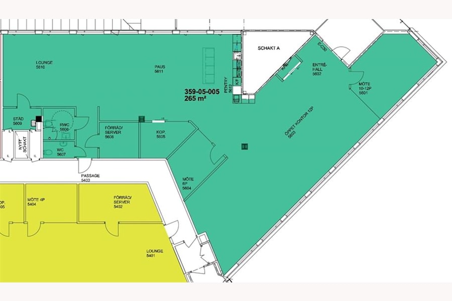
Välkommen till Johanneslundsvägen 12 en modern och serviceinriktad fastighet i ett strategiskt läge i Upplands Väsby. Här erbjuds nu en renoverad kontorslokal om cirka 265 kvm på plan 5, med en ljus och representativ arbetsmiljö.
Lokalen har generöst ljusinsläpp och en flexibel planlösning som lämpar sig väl för både öppna arbetsytor och mötesrum. Den höga placeringen i huset ger ett trevligt ljus och en lugn arbetsmiljö.
Fastigheten är en fullservicefastighet där mycket av det som förenklar arbetsdagen finns samlat under samma tak. I byggnaden finns bland annat hotell, bemannad reception, lunchrestaurang, konferensmöjligheter samt gym för hyresgäster. Den centrala ljusgården med loungeytor skapar en trivsam mötesplats för både hyresgäster och besökare.
Ytor/Planlösning
Öppen eller rumsindelat
Bekvämligheter
Fastigheten erbjuder ett brett serviceutbud i form av hotell, reception, konferenstjänster, gym, restaurang mm. I närområdet finns också ett kompletterande serviceutbud med företag som Scandic Hotell, Lidl, ICA, Friskis och Svettis, Sats, Rusta mfl.
Kommunikationer
Med en direkt anslutning till E4: an ligger fastigheten lättåtkomligt med bil. Härifrån har du endast 25 km tills du är innanför tullarna och Arlanda ligger inom 10 minuters bilfärd. Direktbussen 565X från och till Stockholms City går flera turer om dagen med ca 25 minuters restid. Med bussen som stannar ca 50 meter från fastigheten tar man sig lätt till och från närmaste pendeltågsstationen i Upplands-Väsby.