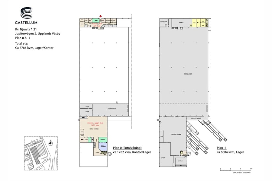
Letar ni efter en rymlig, funktionell och strategiskt belägen lokal för logistik, lättindustri, handel eller kontor? På Jupitervägen 2 i Upplands Väsby erbjuds nu en anläggning på hela 7 786 kvm med alla förutsättningar för att stödja en effektiv och modern verksamhet.
Lokalfakta & fördelar
- Optimala logistiklösningar: Lokalen är utrustad med lasthus och markportar för smidiga in- och utlastningar.
- Goda rangerytor: Stora uppställningsytor för lastbilar och transporter underlättar den dagliga driften.
- Höglager med volym: En imponerande takhöjd på 8,90 meter ger goda lagringsmöjligheter och flexibilitet.
- Starkt golv: Lagergolv med bärighet om 2 ton/m².
- Robust infrastruktur: Elkapacitet om 800 A ger er möjligheter att driva energikrävande verksamheter.
Kostnadseffektiv drift:
- Värme: 52 kr/kvm/år
- El och vatten: 95 kr/kvm/år
Användningsområden
Lokalen lämpar sig för en rad olika verksamheter, bland annat:
- Tung industri
- Handel och distribution
- Kontorsverksamhet kopplat till logistik eller produktion
Upplands Väsby erbjuder ett strategiskt läge i norra Storstockholm med närhet till E4:an, Arlanda och goda kommunikationer in mot centrala Stockholm. Detta ger både logistikfördelar och enkel tillgänglighet för personal och kunder.
Övrig information
Fastigheten ligger i Njursta industriområde ca 7 minuter från E4:an.