Trivsam kontorslokal belägen på plan 3 om 127 kvm i härliga Birkastan med adress Karlbergsvägen 86A!
Lokalen är belägen i ett livligt kvarter med närhet till S:t Eriksplan och Odenplan. Området präglas av en blandning av bostäder, kontor och serviceverksamheter som skapar en trevlig miljö att arbeta i.
I närområdet finns ett stort utbud av restauranger med stor variation, caféer och övrig service. Karlbergsvägen är en välkänd gata med god tillgänglighet och högt naturligt flöde av människor, samtidigt som sidogatorna erbjuder en något lugnare miljö.
Kommunikationerna är mycket goda med tunnelbana vid S:t Eriksplan samt pendeltåg och ytterligare förbindelser vid Odenplan. Flera busslinjer trafikerar området.
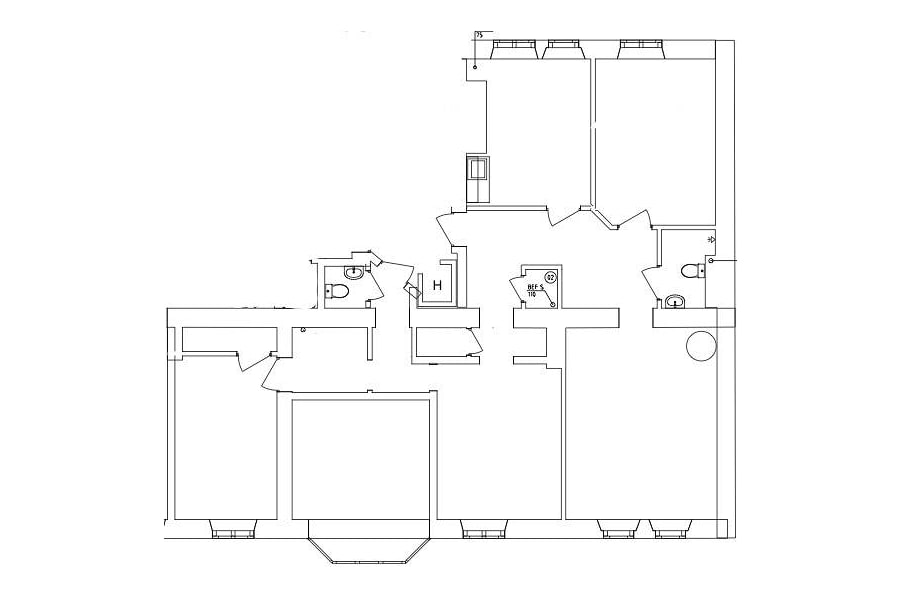
Lokalen nås via fastighetens huvudentré som nås via ingången belägen på Karlbergsvägen. Här nås lokalen via hiss. Väl inne i lokalen möter en yta upp med plats för ytterkläder och väntyta för besökande kunder. Vidare in består lokalen av ett antal rum i varierande storlekar, varav vissa större rum som lämpar sig mycket väl som mötesrum. Här finns även rum som lämpar sig för arbetsplatser för 1-5 kontorsplatser.
Lokalen har två toaletter varav ett nyrenoverat badrum med dusch. Köket som syns på bilderna är under pågående renovering och kommer bytas ut.
Lokalen är belägen i en fastighet med eget café och många samlingslokaler finns att hyra till förmånlig kostnad vid tex konferenser eller större möten. Kontakta mäklaren för ytterligare information!
Se gärna film om objektet via länken nedan!
Yta: 127 kvm
Hyra: 42 300 kr/mån ex moms
Fastighetsskatt: Ingår
Nextor Group AB
Viktor Ritterstrandh
viktor@nextor.se
0736-877397
08-309200
Våningsplan: 3