En mycket fräsch hörnlokal om 99 kvm i modern och nybyggd fastighet belägen på Norra Stationsgatan 68! Garageplatser med laddstolpe kan hyras i fasti...
En mycket fräsch hörnlokal om 99 kvm i modern och nybyggd fastighet belägen på Norra Stationsgatan 68! Garageplatser med laddstolpe kan hyras i fastigheten.
Lokalen är belägen i den nybyggda stadsdelen Hagastaden, som är ett område som är under konstant tillväxt. Här byggs många nya bostäder och kontorskomplex. I framtiden kommer området även att få tunnelbana! I det direkta närområdet finns ett gott utbud med stor variation av trevliga restauranger och caféer. Området huserar även mycket övrig service i form utav bland annat kemtvätt, livsmedelsbutiker mm.
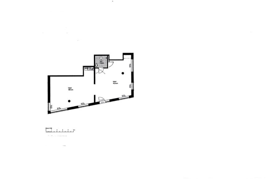
Lokalen nås via en egen ingång direkt från gatan där man möts utav en öppen yta med trevligt ljus och en fantastisk takhöjd. Vidare in i lokalen finns ett separat rum. I lokalen finns även ett pentry och en W/C i fint skick.
Lokalen har massiva skyltfönster som löper runt hela lokalen som ger ett fantastiskt ljusinsläpp in till hela lokalen och erbjuder mycket goda möjligheter till exponering!
Lokalen lämpar sig mycket väl som kontor, butik eller dessa två kombinerat. Dock ej för verksamheter inom skönhet, frisör samt restaurang och café.
Tillträde från 2025-08-31
Ingen överlåtelseavgift utgår!
Yta: 99 kvm
Hyra: 41 250 kr/mån ex moms
Fastighetsskatt: Tillkommer
Nextor Group AB
Viktor Ritterstrandh
viktor@nextor.se
0736-877397
08-309200
Byggår: 2020