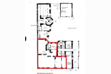
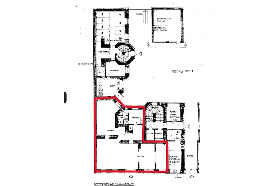
Nu finns möjligheten att etablera din verksamhet i en exklusiv butikslokal på markplan, belägen mitt i eftertraktade Linnéstaden – ett av Göteborgs mest levande och populära områden.
Lokalen har ett oslagbart läge med hög synlighet och ett stort flöde av både fotgängare och förbipasserande trafik. Området präglas av en medveten och köpstark kundgrupp, vilket gör detta till den perfekta platsen för dig som vill ta din verksamhet till nästa nivå.
Oavsett om du driver en butik, ett showroom eller söker en representativ plats för din verksamhet – här får du rätt förutsättningar för att lyckas.
Övrig information
Croisette Real Estate Partner har erhållit förmedlingsuppdrag avseende lokalen som beskrivs i detta informationshäfte. Informationen är till största del inhämtad från Fastighetsägaren och eller Hyresgästen. Croisette AB och dess dotterbolag (”Croisette”) ansvarar inte för riktigheten i informationen. All information som är av relevans skall kontrolleras av en eventuell hyresgäst och varken Fastighetsägaren, Hyresgästen eller Croisette kan hållas ansvarig vid felaktigheter i detta informationshäfte.
Ekonomi
Kontraktlängd: Långtidskontrakt
Kontrakttyp: Förstahandskontrakt
Tillträde: Enligt överenskommelse
Hyresinformation: Kontakta annonsören
Utförande
Fastighetsbeteckning: Kommendantsängen 5:6
Omgivning
Företag i närheten: Ahlvar&Ivar, Stakkelii (Frisör), Human, Borgskogs etc
Parkeringsmöjligheter/garage: Boende och avgiftsparkering i området
Skyltläge: Stora fönster med bra skyltmöjligheter.