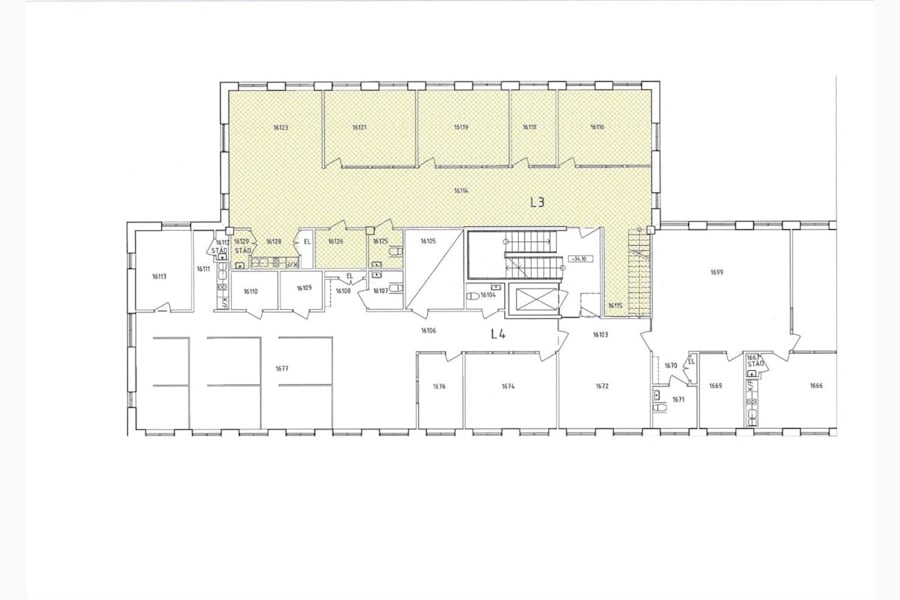
Fräsch lokal i två plan om ca 985 kvm, med egen interntrappa mellan planen. Lokalen är belägen på plan 7 (ca 805 kvm) och 6 (ca 180 kvm) av byggnaden som totalt har 7 plan. En takterass med egen utgång på ca 50 kvm ingår i lokalen. Lokalen har egen entré på plan 7 från fastighetens inre atrium, samt 2 invändiga utrymningstrapphus. I lokalen finns pentry och rwc i båda våningsplanen. Det är en ljus lokal belägen högt upp med fin utsikt över Kista. Det är möjligt att dela upp lokalen om så önskas, lokalytorna på respektive plan är fullt utrustade med eget pentry och wc.
Byggår: 1987
Våningsplan: 7 av 7
Planlösning: Fräsch lokal i två plan om ca 985 m2, egen interntrappa mellan plan, takterass med egen utgång på ca 50m2. Lokalen är belägen på plan 7 (ca 805 kvm) och 6 (ca 180) av fastigheten som totalt har 7 plan. Lokalen har egen entré på plan 7 från fastighetens inre atrium, samt 2 invändiga utrymningstrapphus. I lokalen finns pentry och rwc i båda våningsplanen.
Omgivning
Företag i närheten: RISE, KTH, Ericsson, Kista Galleria
Parkeringsmöjligheter/garage: På källarplan finns ett stort garage för anställda att hyra (vanliga och el-platser), med visst antal avgiftsbelagda besöksplatser.
Närservice: I Fastigheten finns restaurangerna Provence och Sushi Heaven Kista. I närområdet finner du Grönlandsparkens "The Hub," en livlig mötesplats som arrangerar olika events, After Works och har foodtrucks på plats. Kistamässan, som också ligger i närheten, är en av Stockholms största arenor för företagsevent, utställningar, kongresser, bankettmiddagar, konserter, festivaler och internationella utställningar. Dessutom ligger Kista Galleria bara ett stenkast bort och erbjuder en rik variation av restauranger från världens alla hörn. Ett flertal gym finns också inom bekvämt avstånd.
Skyltläge: Lokalen ligger högst upp i fatsigheten i korsningen Kistagången/Isafjordsgatan. Möjlighet för montage av fasadskylt finns.