Vakant lokal i entréplan (plan 3) med utmärkt exponeringsläge. Här erbjuds öppna ytor med generös takhöjd som skapar en spännande studiolook. Stora skyltfönster vetter mot tvärbanan och ger fantastiska möjligheter till exponering. Lokalen passar utmärkt som kontor, showroom, eller en kombination av båda. Ytan uppgår till ca. 347 kvm, idealiskt för ca 20 - 25 fasta arbetsplatser i öppet landskap. Flexibla hyresavtal finns, med tillträde enligt överenskommelse.
Hangar 5 i Bromma är den perfekta mötesplatsen för dig som söker flexibla, moderna kontorslösningar i en inspirerande miljö. Beläget bara några minuter från Bromma Flygplats och nära Stockholms innerstad, erbjuder Hangar 5 toppmoderna kontor, coworking-ytor och konferenslokaler, anpassade för såväl små företag som större organisationer. Med en modern design och alla bekvämligheter du behöver, skapar Hangar 5 en kreativ atmosfär som främjar produktivitet och nätverkande. Här finns också gym, shopping och restauranger – allt för att göra din arbetsdag både effektiv och trivsam.
Byggår: 2021
Våningsplan: 3
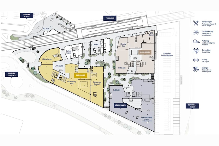
Planlösning: Se bifogad planritning.
Omgivning
Företag i närheten: Beauty Box, SATS, NYC Burger, Ica Maxi, Sharp, XXL, BRA, St1, Coromatic, Husab, m.m.
Parkeringsmöjligheter/garage: Mycket goda parkeringsmöjligheter i varmgarage och utanför, både för bil och cykel.
Närservice: Ica Maxi, Sats, Biz Apart Hotel, Restaurang Hangar 5, Café, Konferensanläggning, Coworking, Bromma Blocks, Apotek, Hårsalong, Beauty Box, m.m.
Skyltläge: Mycket bra skyltläge ut mot Bromma Blocks och Ulvsundavägen