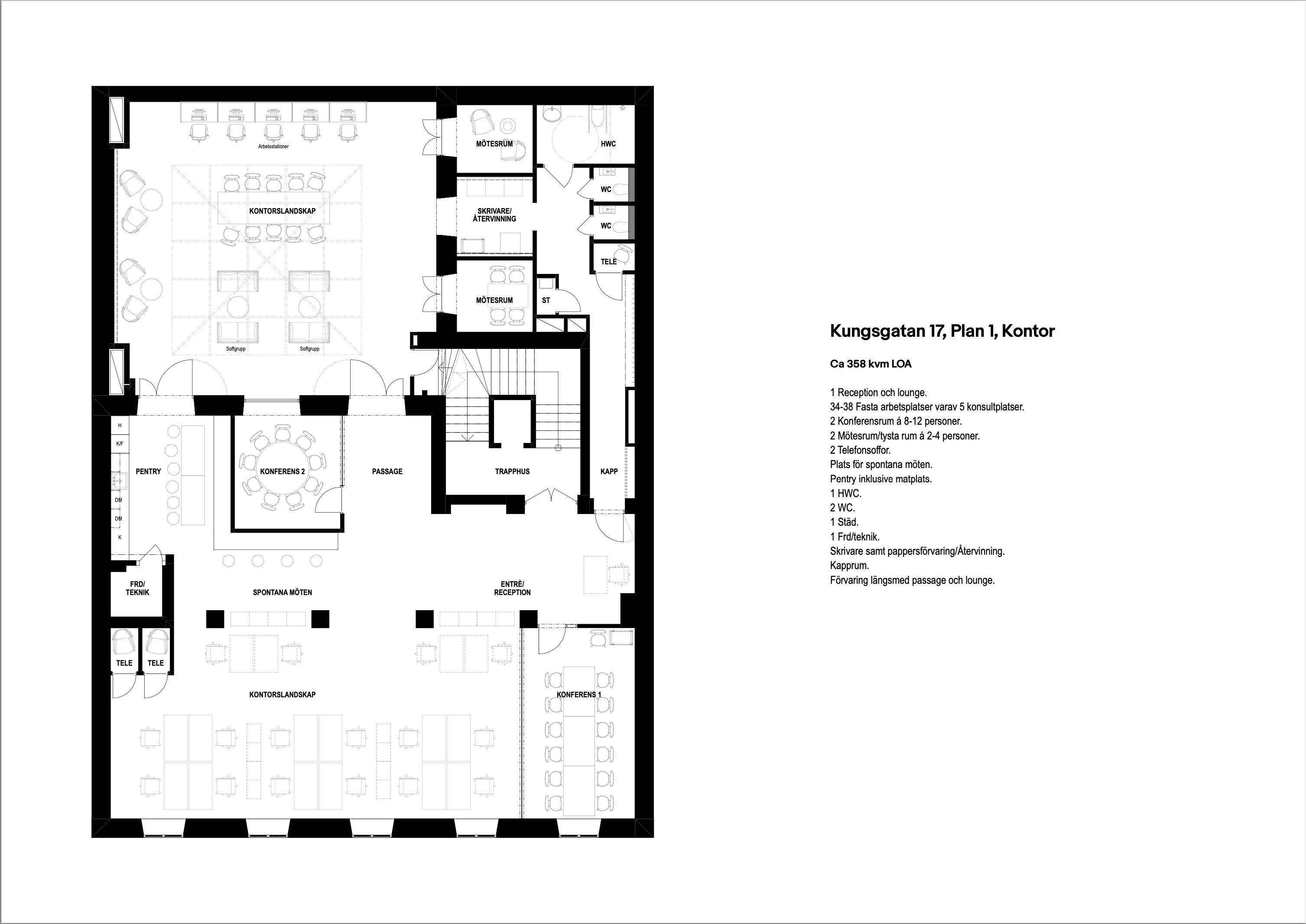
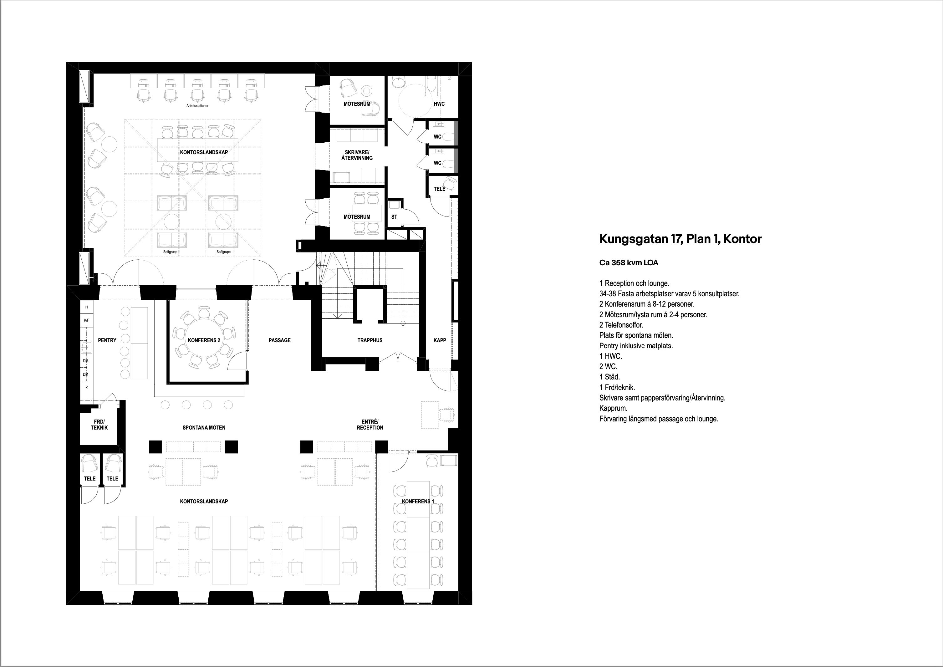
Välkommen till denna representativa lokal om 358 kvm, belägen en trappa upp i en byggnad ritad av Ivar Tengbom. Lokalen erbjuder generösa arbetsytor – den ena med utsikt över Kungsgatan och den andra med ett stort glasatrium som ger fantastiskt ljusinsläpp. Lokalen är extremt yteffektiv och lämpar sig för ca. 40 arbetsplatser!
Vid entrén finner du ett stort konferensrum, tre mötesrum i olika storlekar samt tre telefon-/Teamsrum. Ett öppet kök binder samman arbetsytorna och skapar en naturlig mötesplats. Med smakfulla materialval och hög teknisk standard kombinerar lokalen modern funktionalitet med klassisk elegans.
Kontakta ansvarig mäklare för visning!
Ekonomi
Kontraktstyp: Första hand Kontraktslängd: Minst 3 årigt hyresavtal direkt med fastighetsägaren Uppvärmning: 100 Kyla: 85 Deposition: 6 månadshyror i deposition/bankgaranti
Bekvämligheter
Internet: Fiber finns i fastigheten, Hiss: Ja, finns i fastigheten, Parkering: Flertalet garage i området, I gatuplan finns populära Holy Greens och Zzz Dreamscape Hotel – ett helt digitalt hotellkoncept, shopping, mat och kultur.
Utförande
Byggår: 1921 Renoveringsår: 2019 Antal våningar: 7 Våningsplan: 1 Ventilation: Mekanisk ventilation med kyla
Kommunikationer
Buss: Flertalet busslinjer kring Stureplan och Sveavägen Tunnelbana: Hötorget och Östermalmstorg (uppgång Birger Jarlsgatan)