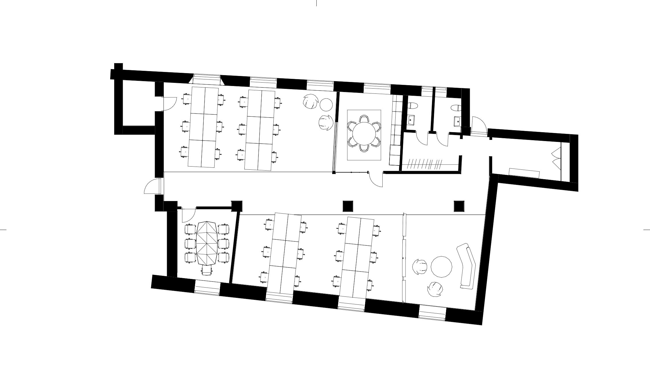
Välkommen till en representativ kontorslokal om ca 210 kvm belägen på våningsplan 5 i en av Stockholms mest eftertraktade adresser. Lokalen erbjuder en yteffektiv planlösning med ett ljust och öppet arbetslandskap. Det finns två representativa mötesrum, perfekt för både interna och externa besök. Det trevliga pentryt är nyrenoverat och utgör en naturlig samlingspunkt. Lokalen har även två fräscha wc: s och genomgående ljusinsläpp!
Lokalen kan hyras under en flexibel avtalstid!
Övrig information
Norrmalm är en central och historisk stadsdel i Stockholm. Norrmalm är känd för sina imponerande moderna byggnader, shoppingstråk, restauranger och kulturella attraktioner. Området har en blandning av kommersiella fastigheter och bostäder, vilket ger det en livlig
Ekonomi
Kontraktstyp: Andra hand Kontraktslängd: 1-3 år (2030-03-31) Uppvärmning: 100 Kyla: 150
Bekvämligheter
Hiss, Internet: Fiber finns i lokalen, Direkt tillgång till ett brett utbud av lunchrestauranger, caféer, gym och shopping. MOOD-gallerian, Hötorgets saluhall och Vete-Katten finns inom ett par minuter. Tunnelbana vid Hötorget och T-Centralen nås enkelt till fots.
Utförande
Byggår: 1924 Antal våningar: 7 Våningsplan: 5 Ventilation: Mekanisk ventilation med kyla
Kommunikationer
Tunnelbana: Hötorget eller Östermalmstorg - Grön och Röd linje Buss: Flertalet busslinjer i området Pendeltåg: Centralstationen 10 min