Här erbjuds även husets bästa lastaccess med goda möjligheter att skicka och ta emot leveranser från Oxtorget! Lokalen har en öppen och effektiv planlösning med fönster mot gården samt taklanterniner. Lokalen kommer att hyra ut i fint skick och med ett helt nytt pentry!
Fastigheten: Huset uppfördes år 1928 och renoverades år 1989.: Husets huvudentré är Kungsgatan 29. Entrén till denna lokal är från innergården via entrén vid Oxtorget 4 där det är lättare att stanna till för leveranser. På Innergården finns cykelställ.
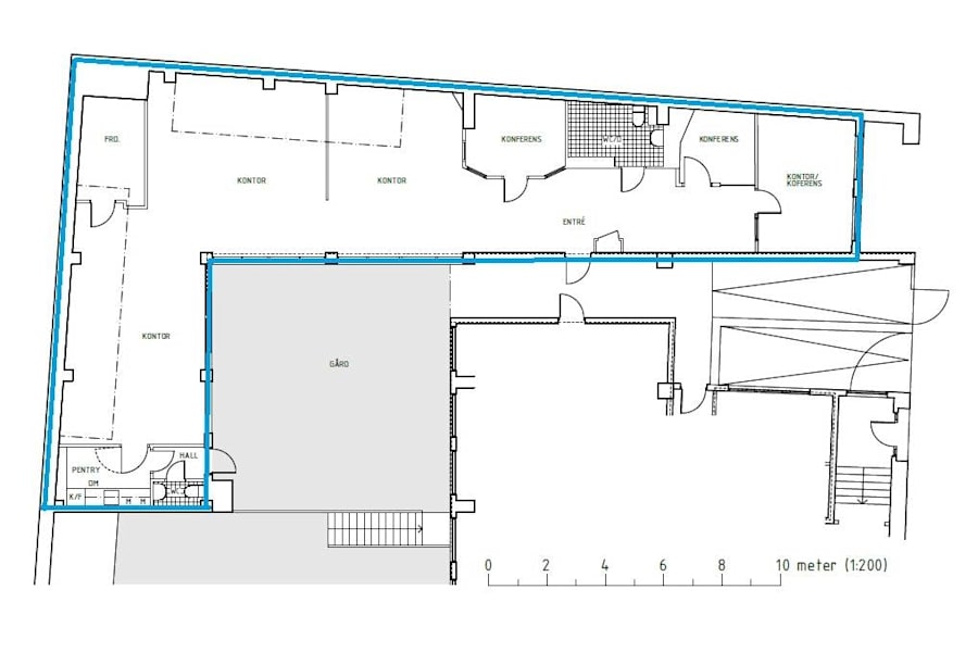
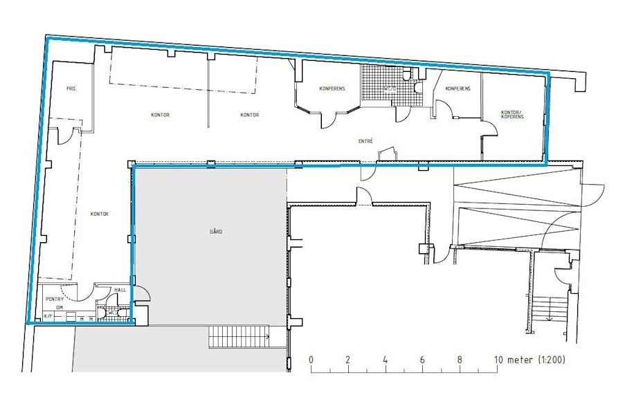
Om lokalen: Lokalen har en öppen planlösning och samtliga kvadratmetrar kan nyttjas effektivt. Du möts av en välkomnande entré med plats för avhängning och ett par väntande besökare. Direkt till höger finns ett arbetsrum för ca 3 personer vilket även kan nyttjas som ett extra mötesrum. I nära anslutning till entrén finns två mötesrum samt den rymligare av lokalens två wc med grått klinkergolv och dusch.
Den övriga ytan utgörs av öppet kontorslandskap med fysisk plats för totalt ca 20 arbetsplatser. Ytan har delvis avdelats med en vägg, så det öppna landskapet är utgörs av tre enheter med fysisk plats för ca 5 arbetsplatser, ca 7 arbetsplatser respektive ca 8 arbetsplatser.
Vägg i vägg med den innersta kontorsytan kommer det nybyggda pentryt placeras och längst in finns en mindre wc. I lokalen finns även ett rymligt serverrum/förråd.
Lokalen har två egna entréer från gården och möjlighet att nyttja entrén på Kungsgatan 29 och gå genom huskroppen till Oxtorget 4.
Säkerhet: Entrédörrar med gallergrind samt gallerförsedda fönster.
Ventilation: Mekanisk till- och frånluft samt kyla.
Bredband: Fiber och nätverk finns indraget i lokalen via Open Universe.
Övrig information
Hyresvärden har fri prövningsrätt vad gäller val av hyresgäst och verksamhet. Vänligen respektera att all kontakt och visningar skall ske via lokalförmedlaren enligt hyresvärdens önskemål.
Ekonomi
Kontraktlängd: Långtidskontrakt
Kontrakttyp: Förstahandskontrakt
Tillträde: Enligt överenskommelse.
I hyran ingår: Värme
Hyresinformation: Kontakta lokalförmedlaren för mer info.
Utförande
Byggår: 1928
Renoveringsår: 1989
Omgivning
Omgivning/natur: Hötorget med livlig torghandel och Stureplan.
Parkeringsmöjligheter/garage: Goda parkeringsmöjligheter i intilliggande p-garage i exempelvis Oxtorgsgaraget,vilket är det närmaste, Hötorgsgaraget och David Bagares Garage.
Kommunikationer
ans buss passerar strax utanför porten. Det är även gångavstånd till Stockholms Centralstation som är Stockholms bästa och viktigaste kommunikativa knytpunkt. Här avgår samtliga t-banelinjer, fjärrtåg, långfärdsbussar, flygbussar samt även Arlanda Express.