Nu finns möjlighet att hyra lokal i en välskött lager- och logistikanläggning, strategiskt belägen strax utanför Mölnlycke. De lediga ytora kan hyras som en hel enhet eller delas upp till två hyresgäster (från 3 605 – 7 819 kvm). Extra portar och anpassningar kan göras efter överenskommelse för att möta era behov.
Lokalalternativ
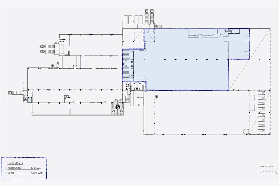
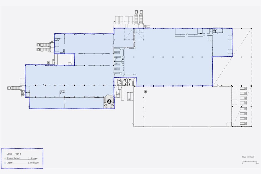
- Lokal A (4 214 kvm)
- Lokal B (3 605 kvm)
Båda lokaler har utmärkt golvbärighet (upp till 5 ton/kvm) och strömkapacitet på 6 600 ampere. Tillhörande kontors- och personalytor är utrustade med moderna faciliteter som pentry/kök, matsal, omklädningsrum, dusch och WC.
Stora och flexibla markytor
Fastigheten ligger på ett inhägnat område med stora rangerytor och möjlighet att köra runt hela byggnaden. Det finns möjlighet att hyra upp till 11 850 kvm uppställningsyta, vilket ger gott om plats för parkering, uppställning eller annan verksamhetsanpassning.
Denna anläggning erbjuder en modern, flexibel och komplett lösning för företag med höga krav på logistik och lagerhållning.
Område: Fastigheten har ett mycket strategiskt läge med snabb access till riksväg 40 och E6, vilket ger smidiga transporter till centrala Göteborg, Landvetter flygplats (cirka 10 minuter) och Borås (cirka 30 minuter). Läget erbjuder mycket god tillgänglighet och är idealiskt för verksamheter som är beroende av effektiva flöden och god logistik.
Kontakta oss idag för mer information eller för att boka en visning!
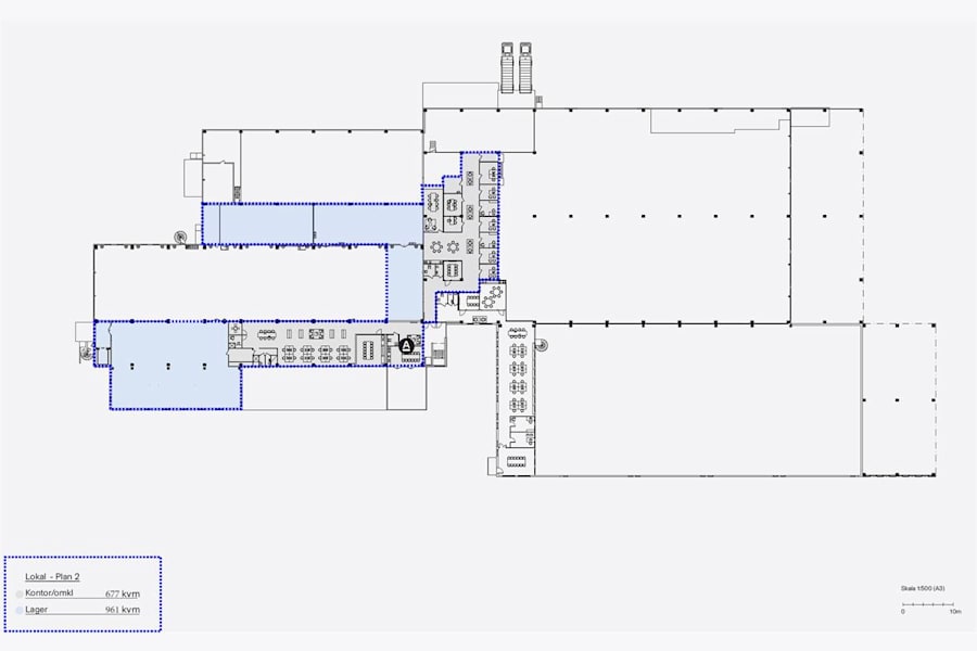
Ytor/Planlösning
Se detaljerad planlösning i PDF.
Ekonomi
Kontraktlängd: Förhandlingsbart
Kontrakttyp: Förstahandskontrakt
Tillträde: Enligt överenskommelse
Utförande
Fastighetsbeteckning: Härryda Håltsås 1:18
Byggår: 2009
Energiklass: Strömkapacitet 6 000 ampere
Takhöjd: 13 m
Omgivning
Omgivning/natur: Landvettersjön med grönområden och badplats nås inom 10 minuters bilfärd
Företag i närheten: PostNord, Saab, Teknikproffset, Skyltmax och Gullbergsvass Lackering
Skyltläge: Skyltläge utåt Kurirvägen/Mediavägen
Vägbeskrivning: Direkt anslutning till riksväg 40 och nära anslutning till E6