Nu finns en välplanerad lagerlokal om 1 002 kvm i Jordbro Företagspark, i en funktionell industri- och lagerfastighet med mycket goda förutsättningar för logistik, produktion och verkstad. Lokalen erbjuder en effektiv och flexibel yta anpassad för verksamheter med krav på smidiga flöden och praktisk drift.
Lokalen har en markport som möjliggör smidig in- och utlastning samt en takhöjd om 3,40 meter, vilket ger bra ytor för lagring och logistikflöden. Det finns även möjlighet att installera oljeavskiljare (anslutning till fastigheten finns redan), vilket gör lokalen flexibel för fler typer av verksamheter, inklusive verkstad.
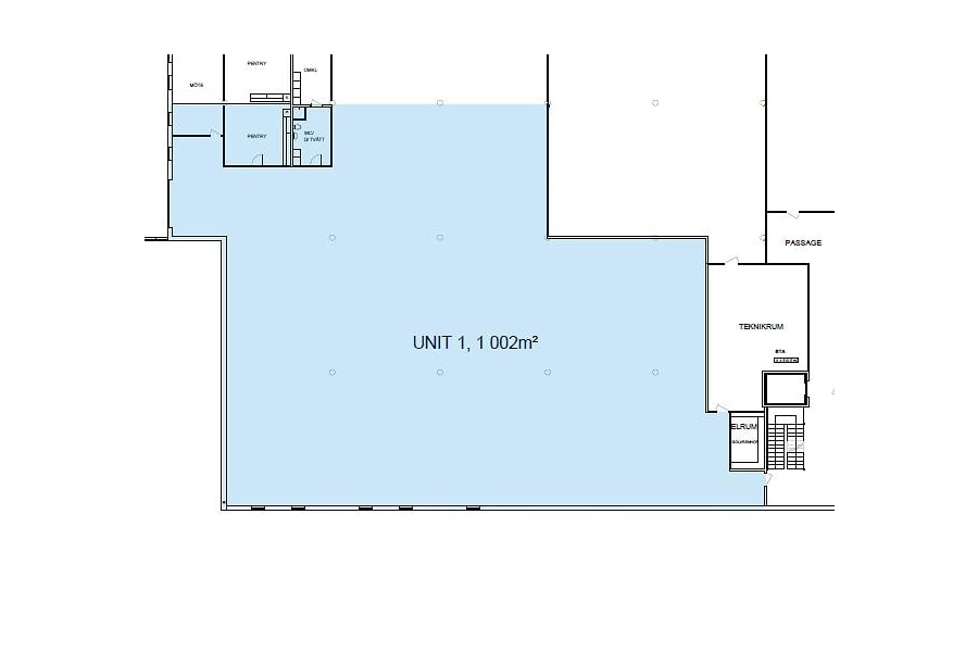
I lokalen finns kök/pentry, dusch och WC, vilket skapar en funktionell helhetslösning för personal och drift. Fastigheten är belägen på ett inhägnat område med anslutande rangerytor och parkeringsplatser, vilket ger både säkerhet och god logistikhantering.
Här kombineras hög funktionalitet, modern standard och stor flexibilitet, vilket gör lokalen väl anpassad för verksamheter med krav på effektivitet och anpassningsbarhet.
Område: Jordbro ligger cirka 25 kilometer söder om centrala Stockholm, på ett fantastiskt läge med nära anslutning till riksväg 73. Riksväg 73 går från Nynäshamn genom Jordbro och sträcker sig till centrala Stockholm, där ett nätverk av trafikleder över hela landet knyts samman. Området är en del av Jordbro Företagspark, ett av Stockholmsregionens mest etablerade och expansiva industri- och logistikområden. Här finns en stark närvaro av logistik-, industri- och handelsverksamheter med flera stora aktörer. Serviceutbud med ett flertal restauranger, matvarubutik, gym och apotek finns i närområdet. Det finns även goda kollektivtrafikförbindelser med buss och pendel till Stockholm med omnejd.
Ytor/Planlösning
Se bland bilder eller ladda ned PDF.
Ekonomi
Kontraktlängd: Förhandlingsbart
Kontrakttyp: Förstahandskontrakt
Tillträde: Enligt överenskommelse
Utförande
Fastighetsbeteckning: Jordbromalm 6:18
Byggår: 2012
Våningsplan: 1 av 2
Takhöjd: 3,4 m
Omgivning
Företag i närheten: Coca-Cola, Bring, TD TechData, Frigoscandia, Dagab, Åhléns och Green Cargo
Parkeringsmöjligheter/garage: Parkeringsplatser i anslutning till lokalen