Ett mysigt kontor som har det mesta – flexibilitet, närhet till all tänkbar service. Parkettgolv och glaspartier till rummen, ett kontor att trivas i för medarbetare och kunder.
Låter det här som ett kontor för er? Välkommen att kontakta oss för mer info och visning!
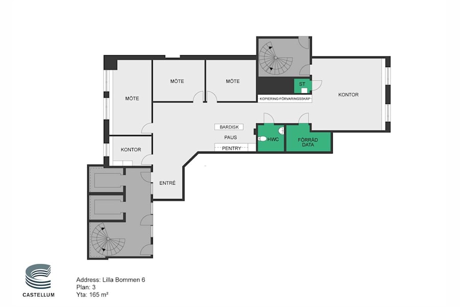
Våningsplan: 3
Planlösning: Blandad planlösning med mötesrum, kontorsrum samt ett öppet kontorslandskap.
Omgivning
Omgivning/natur: Det unika vattennära läget mitt i staden, med Operan bara ett stenkast bort och närheten till Centralstationen gör detta till ett av Göteborgs mest attraktiva lägen. Med närhet till restauranger, butiker och andra bekvämligheter blir det enkelt för både medarbetare och kunder att nå din verksamhet. Du har möjligheten att njuta av stadens puls och energi strax utanför dörren.
Smidig access via de stora trafiklederna.
Parkeringsmöjligheter/garage: Garageplatser finns att hyra i byggnaden. Via hissen når man källarplanet där garaget är beläget.
Närservice: Fastigheten ligger ett stenakst från Nordstan med tillgång till all tänkbar service och butiker som erbjuds i Sveriges tredje största shoppingcenter, Nordstan Affärscentrum.