Kontorsfastighet med modernt kontorshotell fördelat på två våningsplan. Här erbjuds fina gemensamma faciliteter och kontorsrum om 12 – 46 kvm som kan kombineras i flexibla lösningar för att få tillgång till den storlek som verksamheten behöver. Byggnaden ligger med fri access mot Linjegatan och det finns parkering mot avgift i anslutning till lokalerna.
Industriområdet Larsfrid ligger endast 3 kilometer söder om centrala Halmstad och utgör ett optimalt logistikläge i direkt anslutning till E6/E20, nära Halmstad hamn samt vid knutpunkten för riksväg 15, 25 och 26. Högskoleområdet erbjuder ett brett serviceutbud av butiker och restauranger. Det finns goda kollektivtrafikförbindelser med buss till centrala Halmstad.
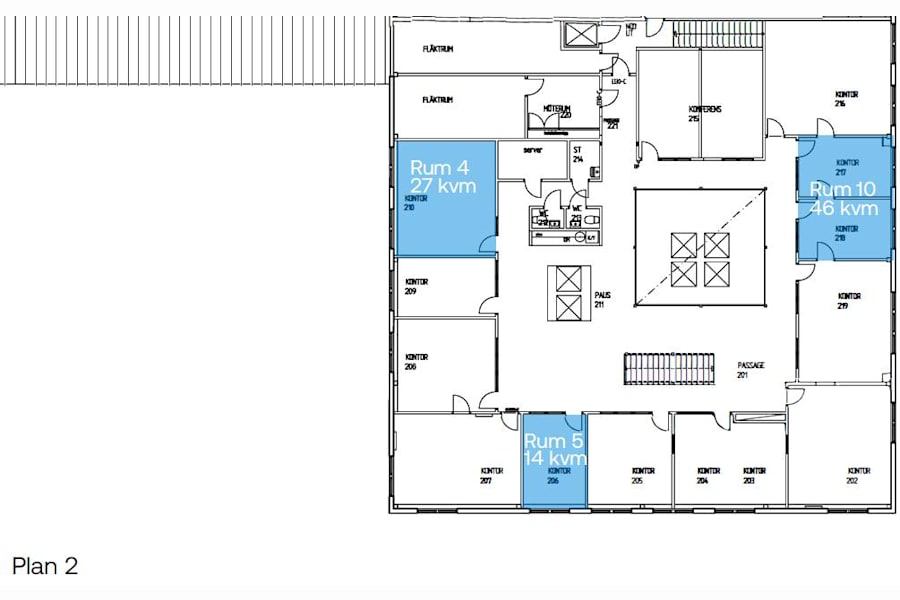
Ytor/Planlösning
Se planritning bland bilder.
Ekonomi
Kontraktlängd: Förhandlingsbart
Kontrakttyp: Förstahandskontrakt
Tillträde: Omgående
Utförande
Fastighetsbeteckning: Fanan 47
Byggår: 1990
Våningsplan: 1 av 2
Omgivning
Företag i närheten: Lidl, Snabbgross, Derome, Biltema Logistics AB och Access Logistics
Parkeringsmöjligheter/garage: Parkering mot avgift i anslutning till lokalerna
Vägbeskrivning: Direkt anslutning till E6/E20 och riksväg 15/25/26