Charmig källarlokal med industrikänsla i anrika Trikåfabriken! Industricharm möter modern design – Nu har du chansen att etablera din verksamhet i en unik kontorslokal med karaktär. Det här är en idealisk plats för dig som söker en professionell men kreativ kontorsmiljö – oavsett om du driver byrå, studio eller annan skapande verksamhet.
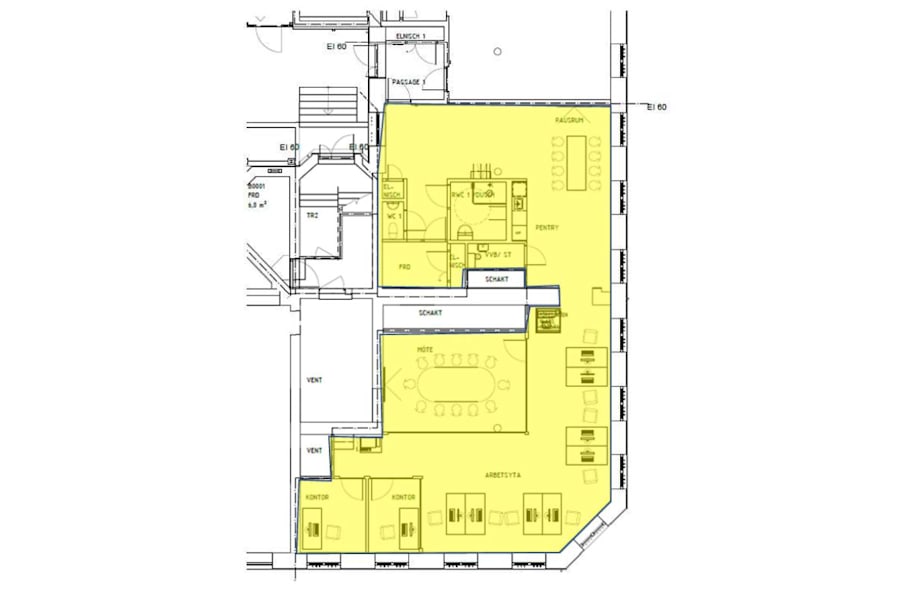
Lokalen omfattar 172 kvm och är belägen i källarplan, i en historisk industrifastighet från sekelskiftet som varsamt renoverats till modern kontorsstandard. Här möts råa originaldetaljer och samtida design i en inspirerande miljö med själ och historia. Trots sitt läge i källarvåning har lokalen ett generöst ljusinsläpp från två väderstreck, vilket skapar en ljus och trivsam arbetsmiljö som sällan hittas i liknande utrymmen.
Fastigheten: Trikåfabriken ligger i Kvarteret Bilden som har varit ett blandkvarter i över 20 år – och här finns en stor del av vårt hjärta. I kvarteret integreras arbete, socialt liv, gemenskap och avkoppling på ett fantastiskt sätt. Innovativa och kreativa företag trivs här och drar nytta av det gemensamma utrymmet och de moderna mötesplatserna. Vår transformation av den drygt hundraåriga Trikåfabriken till moderna kontor har väckt stor uppmärksamhet.
Kvarteret: Mellan Möllevångstorget och S: t Knut växer ett premiumläge fram. Runt Folkets Park, S:t Knuts torg och Bergsgatan ligger några av Malmös mysigaste kvarter, med sommargator, krogar, restauranger, kaféer och människor som vill umgås. Med en brokig blandning av verksamheter liknar Trikåfabriken inget annat i centrala Malmö. Runt Möllevången finns en helt egen mix av torghandel, lokala butiker, arbetsplatser och bostäder. Spelföretaget Massive har sin verksamhet i kvarteret bredvid, och Möllevångsskolan och Folkets Park bidrar med en naturlig rörelse av människor. Området runt Bergsgatan/ Friisgatan/ Monbijougatan är i en spännande utveckling med många kreativa näringar.
På Trikåfabriken blir du granne med kreativa företag så som FOJAB arkitekter, Nimblr., Talkative, MIKAs modellagentur, Anagram produktionsbolag m.fl.
Missa inte din chans att bli en del av kvarteret!
Kommunikationer: - 700 m till Triangelns tågstation & köpcentrum
- Regional- och stadsbussar i närheten av fastigheten
- Åtta minuters promenad till bussterminalen på Södervärn
- Nio minuters cykel till innerstaden / Gustav Adolfs torg