Perfekt lageryta för er som är i behov av ett enkelare lager i bra läge. Det finns en innergård för smidig lastning/lossning. Innergården är avsedd för en mindre lastbil. Det är lätt att nå fastigheten via E6 och Söderleden.
Lokalen är i behov av renovering. Pentry, wc och önskat antal kontorsrum tillskapas innan tillträde.
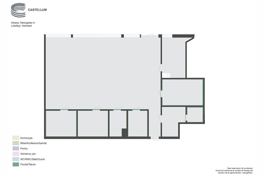
Porten i markplan är ca 3 m hög och ca 2 m bred.: Takhöjden till installationer är ca 4 m.
Låter det som en lokal för er, välkommen att kontakta oss för mer information och visning!
Övrig information
Byggnaden är en kontors-, industri- och lagerbyggnad med lager- och verkstadsutrymmen på bottenplan samt kontor i fyra plan.
Ekonomi
Kontraktbeskr.: Kallhyra - 1200kr/kvm driftskostander och fastighetsskatt tillkommer.: Moms tillkommer med 25%
Tillträde: Enligt överenskommelse.
Utgångshyra kr/m2/år: 1200
Omgivning
Omgivning/natur: Fastigheten är belägen i Åbro industriområde i Mölndal. Åbro industriområde ligger längs med Söderleden och E6/E20, vilket innebär både god tillgänglighet och bra exponering. Närheten till R40 gör det enkelt att ta sig till Landvetter Flygplats. Tillväxten i Åbro är god och här byggs flertalet fastigheter inom handel och logistik. Som exempel har Castellum Väst under 2017/2018 uppfört tre nya fastigheter till våra hyresgäster Exertis, Porsche och Ahlsell.