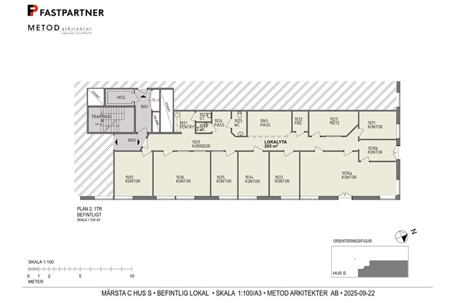
Fin lokal belägen 1 trappa upp. Lokalen består av ett flertal enskilda rum samt större konferensrum. Heltäckande matta på golvet ger ombonad känsla. Ljusa väggar och stora fönster bidrar till en bra arbetsmiljö. Märsta Centrum präglas av en kvarterskänsla med restauranger, café och butiker. Fin utsikt över gångstråk sätter lite mjuk och nostalgiskt avtryck på kontorets karaktär.
Varmt välkomna att kontakta oss för mer information och visning.
Ytor/Planlösning
Öppen eller rumsindelat
Övrig information
Fastpartner är ett börsnoterat fastighetsbolag som äger och förvaltar fastigheter långsiktigt med egen personal. Vår affärsidé är att skapa goda och långvariga relationer med våra hyresgäster genom att vara lyhörda för våra hyresgästers önskemål samt engagerade i förvaltningen och utvecklingen av våra fastigheter. Vårt fastighetsbestånd är koncentrerat till Stockholm, men vi har också lokaler på ett flertal expansiva orter i Sverige, bla Göteborg, Malmö, Norrköping, Uppsala och Gävle. Vi tycker det är kul att arbeta med den tekniska utvecklingen av våra fastigheter. Vi ser att det både finns en vinning för miljön och plånboken i att vara en engagerad hyresvärd. Vår organisation genomsyras av en entreprenörsanda och har korta beslutsvägar vilket uppskattas av våra hyresgäster. Välkommen till Fastpartner!
Bekvämligheter
Service, med restauranger, butiker, och övriga tjänster finns precis utanför dörren. Märsta Centrum utvecklas i snabbt tempo och blir en fantastiskt stadskärna för hela Sigtuna kommun. Närheten till Arlandastad sätter dynamisk fart på konstant pågående förändring i hela området.
Omgivning
I Märsta Centrum hittar du allt samlat, vare sig det rör kontakt med kommunen, service, shopping, restauranger eller nöjen.
Märsta och Sigtuna är en växande och attraktiv region både som plats att bo och leva på och som etableringsplats för företag. I och med de nya satsningar som Fastpartner gör ökar den attraktionskraften ytterligare.
Kommunikationer
Märsta är centralort i Sigtuna kommun och ligger nästan mittemellan Stockholm och Uppsala, med direkt närhet till E4:an. Restid till Stockholm med bil cirka 35 minuter, till Uppsala cirka 30 minuter och Arlanda cirka 10. Från Märsta station går pendeltåg till Stockholms centralstation. Även fjärrtågen mellan Stockholm och Uppsala stannar i Märsta. Bra bussförbindelser finns till Sigtuna, Valsta, Steningehöjden och Arlanda. Gångavstånd från Märsta station till Märsta Centrum. Buss trafikerar sträckan och tar ett par minuter. Samtliga större busslinjer passerar dessutom Märsta C.