Modern miljöbyggnad med höglager, produktionsdel/ytterligare lager samt kontor.
BESKRIVNING
Nu finns chansen att etablera ert företag i det växande industriområdet Ältaberg! Med sitt strategiska läge nära både Stockholm och Tyresö är Ältaberg en attraktiv och expansiv företagspark. Området växer snabbt och erbjuder moderna industrilokaler med flexibel planlösning, vilket gör det perfekt för verksamheter inom lager, produktion eller kontor.
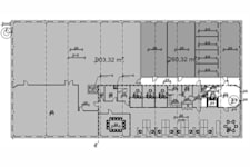
HÖGLAGER I MARKPLAN ca 700 m2 (möjlighet till ytterligare 500 m2).
Höglagret har en takhöjd på 7-7,5 m med en elektrisk vikport (höjd 4 m). Lasthiss mellan lagret och övre plan finns.
ÖVRE PLAN ca 903 m2 (kontor och produktionsytor)
Nås via fastighetens kund/personal entré samt höglager.
I dag är ytan fördelad på produktion ca 603 m2 med hög bärighet samt modernt kontor/konferens/kök och WC-grupper (dusch) om ca 300 m2 (möjlighet till ytterligare ca 250 m2).
Takhöjd om 4 m.
Genröst antal parkeringar på fastigheten.
TEKNISK BESKRIVNING
*Bergvärme
*FTX, airco
*Miljöbyggnad
*Energiklass A
*Byggår 2017
ÄLTABERG
Ältaberg har smidig access till huvudstadens marknad samtidigt som ni enkelt når Tyresö och hela Stockholmsregionen. Med utmärkta vägförbindelser och lättillgänglig infrastruktur blir det enkelt för både leveranser och personalpendling.
En annan stor fördel är de konkurrenskraftiga hyrorna. I Ältaberg får ni mer för pengarna jämfört med de centrala delarna av Stockholm, utan att behöva kompromissa på läget. Området satsar också på hållbarhet, med flera fastigheter som erbjuder energieffektiva och miljövänliga lösningar – ett utmärkt alternativ för företag med ett grönt fokus.
Kommunikationerna är utmärkta, med närhet till viktiga vägnät som väg 229 och andra större motorleder som snabbt tar er till Stockholm C (ca 15 minuter), Tyresö och Nacka. Ältaberg är även lättillgängligt för kollektivtrafik, vilket gör det enkelt för era anställda att pendla. Flera busslinjer passerar området, och på kort tid når man större knutpunkter med både pendeltåg och tunnelbana (Gullmarsplan).
Med många små och stora företag som redan har valt att etablera sig här, är Ältaberg redo att välkomna er verksamhet. Missa inte möjligheten att bli en del av detta framgångsrika område där framtidens företag växer. Kontakta oss för mer information och visning!
VISNING/KONTAKT
Vänligen respektera säljarens / hyresvärdens önskemål om bokad visning.
För mer information eller visning av objektet, hör av er till Locus Advice genom kontaktformuläret eller ring Joanna Eriksson på tel 08-558 094 43, Fredrik Lundberg 08-558 094 47
Växeln är öppen helgfria vardagar mellan 08.30-17.00: Locus Advice tel 08-558 094 40
LOCUS ADVICE
Locus Advice är ett fastighetskonsultbolag med fokus på kommersiella fastigheter och lokaler. Vi arbetar med
Genom etablerade samarbeten med både stora och små fastighetsägare har vi tillgång till ett stort utbud av lokaler utöver vad vi kan marknadsföra i vår egen regi. Via dessa samarbeten kan vi med stor sannolikhet hjälpa er hitta den lokal ni söker efter.