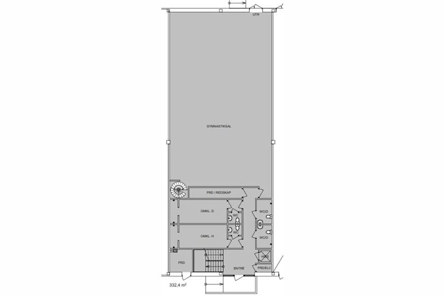
Stor och öppen yta i markplan, idealisk som gymnastiksal, träningsstudio (yoga, dans, kampsport), eller för events.
Enkel tillgänglighet för kunder och leveranser.
Kontor & Administration (ca 105 kvm) Övre plan
Ljus och rymlig kontorsdel på övre plan, perfekt för administration, mötesrum eller behandlingsrum.
Övriga utrymmen
Inkluderar fullt utrustade omklädningsrum med duschar och toaletter.
Övriga biytor ingår i totalarean om 534 kvm.
Perfekt för:
Gym/Träningsanläggning
Dansstudio / Kampsportsklubb
Företag med behov av både lager/produktion och administration
Föreningar och skolor
Läget kan inte bli bättre! Med närhet till järnvägsstationen får du utmärkt synlighet och tillgång till goda pendlingsmöjligheter för både personal och kunder.
Ytor/Planlösning
Öppen eller rumsindelat
Övrig information
Fastpartner är ett börsnoterat fastighetsbolag som äger och förvaltar fastigheter långsiktigt med egen personal. Vår affärsidé är att skapa goda och långvariga relationer med våra hyresgäster genom att vara lyhörda för våra hyresgästers önskemål samt engagerade i förvaltningen och utvecklingen av våra fastigheter. Vårt fastighetsbestånd är koncentrerat till Stockholm, men vi har också lokaler på ett flertal expansiva orter i Sverige, bla Göteborg, Malmö, Norrköping, Uppsala och Gävle. Vi tycker det är kul att arbeta med den tekniska utvecklingen av våra fastigheter. Vi ser att det både finns en vinning för miljön och plånboken i att vara en engagerad hyresvärd. Vår organisation genomsyras av en entreprenörsanda och har korta beslutsvägar vilket uppskattas av våra hyresgäster. Välkommen till Fastpartner!