Nu finner du en kombilokal om 1639 kvm ledigt på adressen Ovädersgatan 3A!
Lokalen består av:
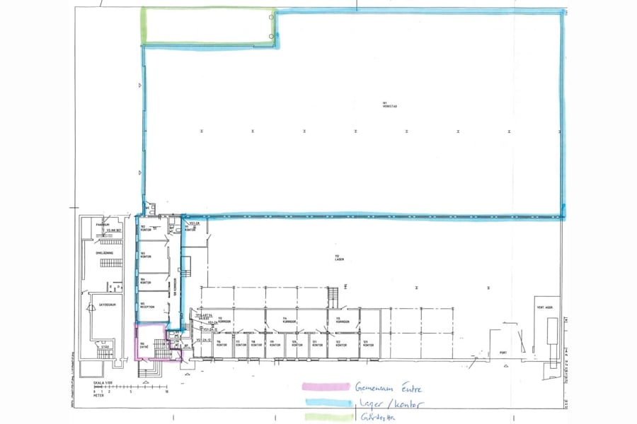
101 kvm kontorsyta
1538 kvm lageryta
Lite gårdsyta finns också (se det gröna i planlösningen)
Lagret har en takhöjd om ca 10 meter och 2 portar (B:6m * H:5m & B:4m * H:4,5m)
I lokalen finns också 2 st traverser för 10 ton och 3 ton! Golvet har även en extremt bra bärighet.
Fiber och fjärrvärme finns i huset!
<strong>Välkommen till oss på Croisette för ytterligare information och bokning av visning!</strong>
Omgivning
Omgivning/natur: Industriområde med lager och logistik
Företag i närheten: Inhab golv, Ahlsell, Segerlöfs - proffs på bilkyla & bilvärme
Parkeringsmöjligheter/garage: I anslutning till byggnaden finns parkeringsmöjligheter