Nu finns möjlighet att hyra en rymlig lokal i Slakthusområdet!
Avstående från besittningsskydd – flexibelt hyresavtal Stora öppna ytor: Takhöjd (4,60 m) med synliga installationer: Omklädningsrum, dusch & bastu – bekvämlighet för personal
Kontakta oss för visning och mer information!
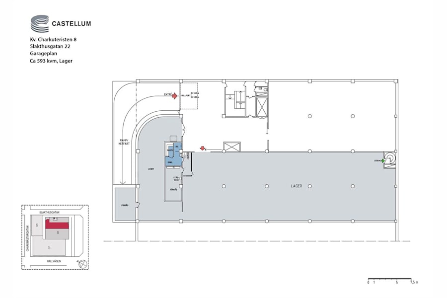
Övrig information
Fastigheten är en industrifastighet belägen i Slakthusområdet med över 100-åriga anor och som nu är ett av Stockholms mest intressanta utvecklingsområden.
Ekonomi
Tillträde: Enligt överenskommelse.
Omgivning
Omgivning/natur: Slakthusområdets strategiska läge ger närhet till det mesta. Endast ett par minuters promenad bort ligger köpcentret Globen Shopping, där all tänkbar service såsom restauranger, butiker och närservice finns vilket gör lunchärendena snabbt avhandlade.
Unikt för området är dessutom Tele 2 Arena, en modern idrotts- och evenemangsarena alldeles i närheten av Slakthusområdet. Nedre plan i arenan går under namnet ”Tolv Stockholm” som är ett unikt mat- och nöjeskoncept som höjer lunchupplevelsen lite extra.
Slakthusområdet är också ett av Stockholms mest spännande utvecklingsområden. Här pågår ett detaljplanearbete som syftar till att utveckla en levande stadsdel där bostäder, handel, kultur och företagande samexisterar. Områdets tradition ska bevaras genom att de kulturhistoriskt värdefulla byggnaderna ska bibehållas och stå sida vid sida med den nya arkitekturen. Historien tas också tillvara genom att många av de publika verksamheterna kommer vara kopplade till bland annat mat, dryck och evenemang.
Castellum äger i dagsläget fyra fastigheter i området och vårt mål är att utveckla vårt bestånd och addera fler attraktiva och moderna arbetsplatser i takt med att området utvecklas, men vi vill också lyfta fram byggnadernas kulturella och arkitektoniska värden. I och med utvecklingen av Slakthusområdet så planeras även tunnelbanan att dras om och få en ny station inne i Slakthusområdet. Castellums byggnader hamnar precis vid den nya centrala stationen - precis där ditt företag också vill vara.
Parkeringsmöjligheter/garage: Här finns det parkeringsplatser både i markplan och burat p-däck att hyra. Är du intresserad, kontakta din Biträdande förvaltare.