Här är en lokal som erbjuder mycket ljusinsläpp från stora fönsterpartier vilket ger en härlig arbetsmiljö att vistas i. Det är ett mycket bra skyltläge mot leden. Man har tillgång till hiss, som går direkt in i lokalen från markplan. Välkomna dina kunder till en snygg entré. Vid lokalanpassningar försöker vi alltid ha återbruk och hållbarhet i åtanke.
Önskar du veta mer om lokalen? Hör av dig till oss, så ser vi till att hitta den perfekta arbetsplatsen för dig och din verksamhet!
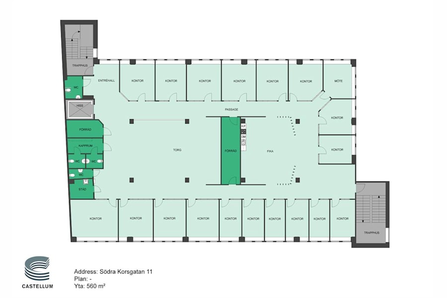
Våningsplan: 2
Planlösning: Kontorsrum med gott om ljusinsläpp, rymligt pausrum med pentry samt flertal wc.
Omgivning
Omgivning/natur: Området är mycket lättillgängligt, med 10 minuters gångavstånd in till city och allt tänkbart utbud i forma av butiker och service.
Lunchpromenaden kan avnjutas i den gröna Annelundsparken som är 91 400 kvadratmeter stor och har ett stort utbud av växligheter. Här finns även stadens största lekplats och i närområdet finns det mesta man kan önska sig med lunchrestauranger och kommersiell service.
450 meter ifrån lokalen finns ICA Maxi, Apotek mm.
Parkeringsmöjligheter/garage: Parkeringsytor finns i området. Sms-parkeringar finns att tillgå.
Närservice: Hos oss har varje hyresgäst ett eget team!
Med ett starkt lokalt engagemang är vi måna om att leva upp till de förväntningar som ställs på en trygg och långsiktig hyresvärd, varje dag, i stort och smått.
Alla våra fastigheter sköts av vår egen personal och som hyresgäst har du tillgång till ett eget Castellumteam som ser till att du trivs hos oss. Och om dina behov så småningom förändras kan vi, tack vare vår storlek, nästan alltid erbjuda en lösning.
För att göra det enkelt för våra hyresgäster att leva hållbart erbjuder vi bland annat gröna hyresavtal och förnybar el.