Här har ni den praktiska lagerlokalen som kan erbjuda förvaring med smidig åtkomst för era leveranser, in- och utlastning. Två lastbryggor med varsin port till vardera brygga. Lastbryggan är delas med andra hyresgäster i huset.
Lättillgängligt med snabb på- och avfart till R40.
Det är en sluttande takhöjd på ca 5,0 m - 6,20 m
Höjden på portarna ca 3,25 m och 2,0 m
Välkommen att kontakta oss för mer info och visning!
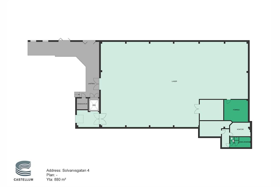
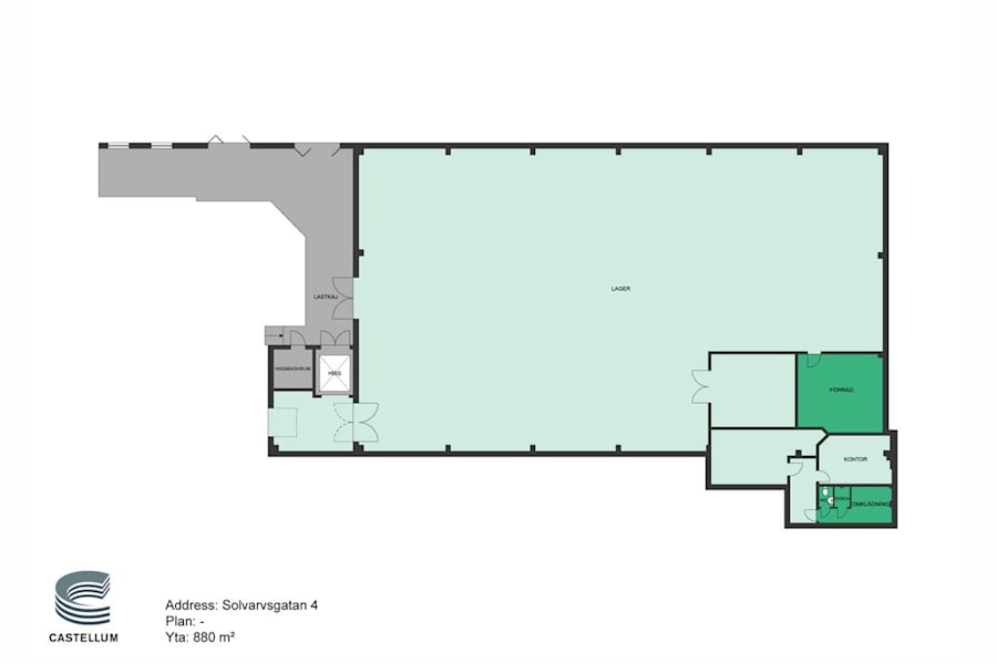
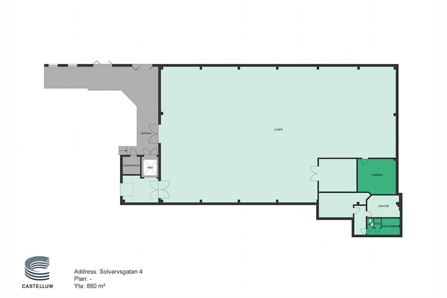
Våningsplan: 1
Planlösning: Utöver lagerdelen finns ett kontorsrum, omklädningsrum med dusch, wc och pentry.
Omgivning
Omgivning/natur: Fastigheten är belägen i området Hulta, lite utanför Borås Centrum. Här är du nära vatten, skog och natur. Samtidigt är det lätt att ta sig både till och från fastigheten då R40 ligger precis intill.
I närområdet finns bl a en livsmedelsbutik och bensinmack.
Parkeringsmöjligheter/garage: Parkeringar finns i anslutning till fastigheten.
Närservice: Hos oss har varje hyresgäst ett eget team!
Med ett starkt lokalt engagemang är vi måna om att leva upp till de förväntningar som ställs på en trygg och långsiktig hyresvärd, varje dag, i stort och smått.
Alla våra fastigheter sköts av vår egen personal och som hyresgäst har du tillgång till ett eget Castellumteam som ser till att du trivs hos oss. Och om dina behov så småningom förändras kan vi, tack vare vår storlek, nästan alltid erbjuda en lösning.
För att göra det enkelt för våra hyresgäster att leva hållbart erbjuder vi bland annat gröna hyresavtal och förnybar el.