Välkommen till en lokal där modern funktionalitet möter historisk charm. Med sina generösa 352 kvadratmeter erbjuder denna yta en flexibel miljö som passar en mängd olika verksamheter – från kontor till kundmottagning.
Lokalen är belägen i ett vackert sekelskifteshus, vilket ger en karaktärsfull atmosfär samtidigt som den är utrustad med moderna bekvämligheter för en effektiv arbetsdag. Den stilrena designen skapar en professionell och inspirerande miljö som främjar både trivsel och produktivitet.
Trots det centrala läget – mittemot Gamla Ullevi och med gångavstånd till Centralstationen och Drottningtorget – erbjuder lokalen ett lugnt och harmoniskt läge, perfekt för fokuserat arbete och kreativa möten.
Här får du:
Välkommen till oss på Croisette för ytterligare information och bokning av visning!
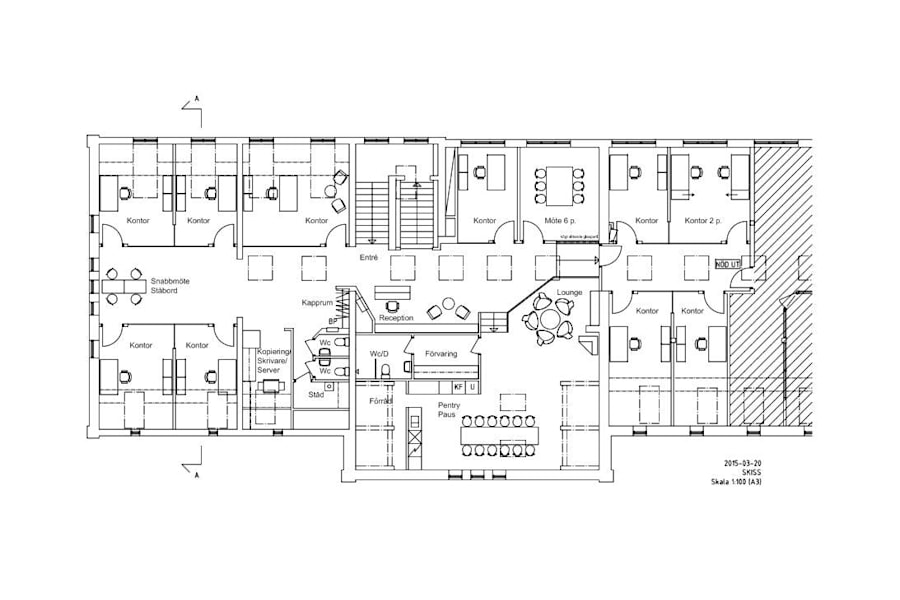
Ytor/Planlösning
10 kontorsrum, kök och lounge med pentry. Mötesrum.
Övrig information
Croisette Real Estate Partner har erhållit förmedlingsuppdrag avseende lokalen som beskrivs i detta informationshäfte. Informationen är till största del inhämtad från Fastighetsägaren och eller Hyresgästen. Croisette AB och dess dotterbolag (”Croisette”) ansvarar inte för riktigheten i informationen. All information som är av relevans skall kontrolleras av en eventuell hyresgäst och varken Fastighetsägaren, Hyresgästen eller Croisette kan hållas ansvarig vid felaktigheter i detta informationshäfte.
Antal rum: 11
Ekonomi
Tillträde: Enligt överenskommelse
Hyresinformation: Kontakta annonsör
Utförande
Fastighetsbeteckning: Stampen 26:1
Byggår: 1929
Våningsplan: 3
Omgivning
Omgivning/natur: Nära Trädgårdsföreningen för härliga lunchpromenader.