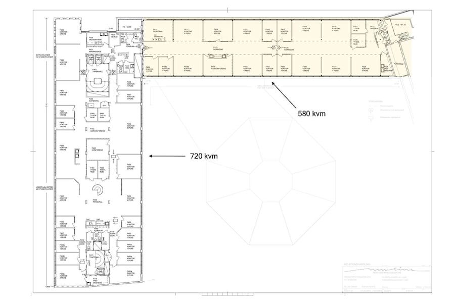
Här erbjuder vi en unik möjlighet att hyra ljusa, genomgående lokaler på antingen 580 kvm eller hela 720 kvm. Oavsett om ni söker ett representativt kontor eller letar efter den perfekta platsen för er vårdverksamhet, så är detta en yta som formar sig efter era behov.
Varför välja Stora Södergatan 49?
Skräddarsydd för vård & kontor: Lokalerna är idag inredda som kontor, men har den unika möjligheten att anpassas till en modern vårdcentral, tandläkarklinik eller specialistmottagning. Vi anpassar ytorna i samråd med er för att uppfylla alla branschkrav.
Ljus och rymd: Med ett fantastiskt ljusinsläpp från två håll skapas en arbetsmiljö som ger energi hela dagen.
Tillgänglighet i fokus: Era kunder och medarbetare når lokalen smidigt via hiss eller hälsotrappa
Parkering mitt i city: Fastigheten har ett eget garage där ni kan få tillgång till reserverade platser för både personal och besökare.
Livskvalitet på köpet: På plan 5 hittar ni en gemensam matsal för sociala luncher och en fantastisk takterrass. Här kan ni njuta av lunchpausen i solen med utsikt över Lunds takåsar.
Våningsplan: 4 av 5
Planlösning: Möjlighet att anpassa till vård (vårdcentral, tandläkare, ögonklinik m.m) Idag är lokalen inredd för kontor.
Omgivning
Företag i närheten: Lunds kommun, Försäkringskassan, Arbetsförmedlingen, Skatteverket
Parkeringsmöjligheter/garage: Garage finns i fastigheten - möjlighet till ett antal reserverade platser
Närservice: Flertalet restauranger och livs i närheten