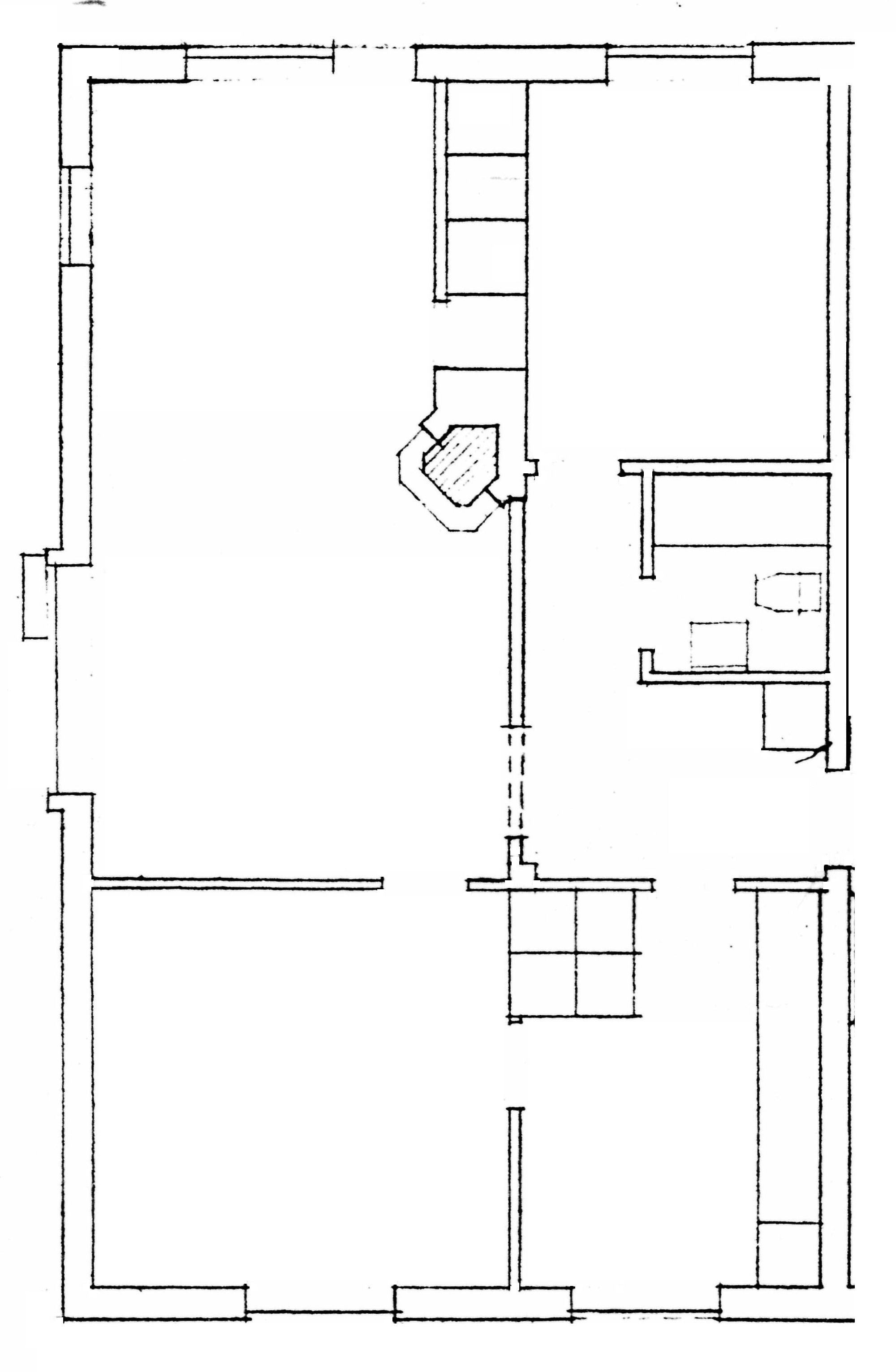
På Storängstorget med Åkersberga centrum som granne ligger denna nyrenovereade lokal med fönster mot Storängstorget. Lokalen har tre stora rum och ett rymligt kök samt både balkong och öppen spis och ligger på 2 trappor. Lokalen går att anpassa till olika verksamheter.: Fatigheten ligger mycket centralt i Åkersberga och det är ca 3 minuterspromenad till Roslagsbanan och granne med Åkersberga Centrum.
Ekonomi
Kontraktstyp: Första hand Kontraktslängd: 3 till 5 årigt hyresavtal direkt med fastighetsägaren Uppvärmning: 100 El: Egen abonnemange Moms: 25% Deposition: 3-6 månadshyror bankgaranti eller depositionser
Bekvämligheter
Cykelparkering, Internet: Ja, finns i lokalen, Parkering: Det finns ett flertal p-garage i närområdet., Garage: I grann fastigher finns garage och 5 minuter till Åkersberga centrums garage, Förråd: Ja, finns i huset, Granne med Åkersberga centrum som är ett fullutrustat centrum med butiker, restauranger, gym, frisörer, flera livsmedelsbutiker, hotell samt all typ av kommunal service. m.m. Det finns ett flertal p-garage i närområdet.
Utförande
Byggår: 1954 Renoveringsår: 1995 Antal våningar: 3 Ventilation: Självdrag
Kommunikationer
Buss: 3 minuters promenad till Åkerberga busstorg. Pendeltåg: 3 minuters promenad till Roslagsbanan