I mötet mellan stadens puls och grönskande Gärdet ligger Duoliten en karaktärsfull kontorsfastighet med rötter i 70-talets arkitektur. Här finns allt för en smidig arbetsdag. Börja dagen med en kaffe från husets café, boka in ett möte i flexibla lokaler eller ät en bit mat utan att lämna byggnaden. Efter jobbet är det nära till både träning, avkoppling och kvällens middag. Du tar dig enkelt hit oavsett om du cyklar, kör bil eller åker kollektivt.
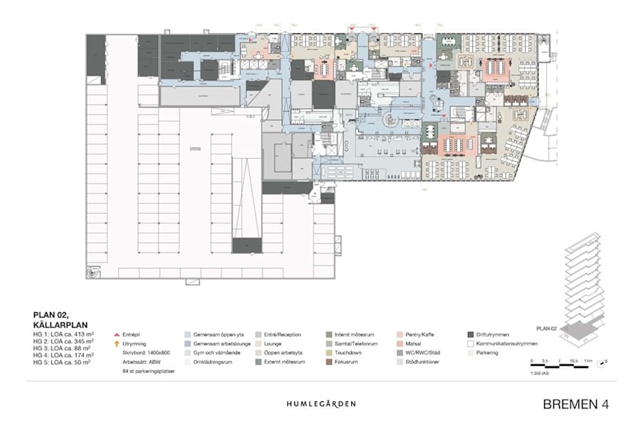
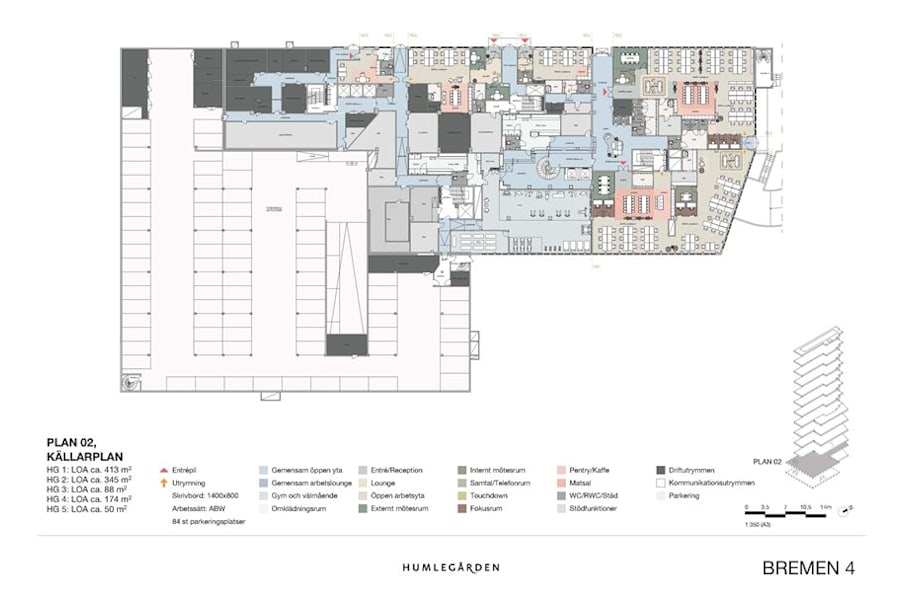
Ytor/Planlösning
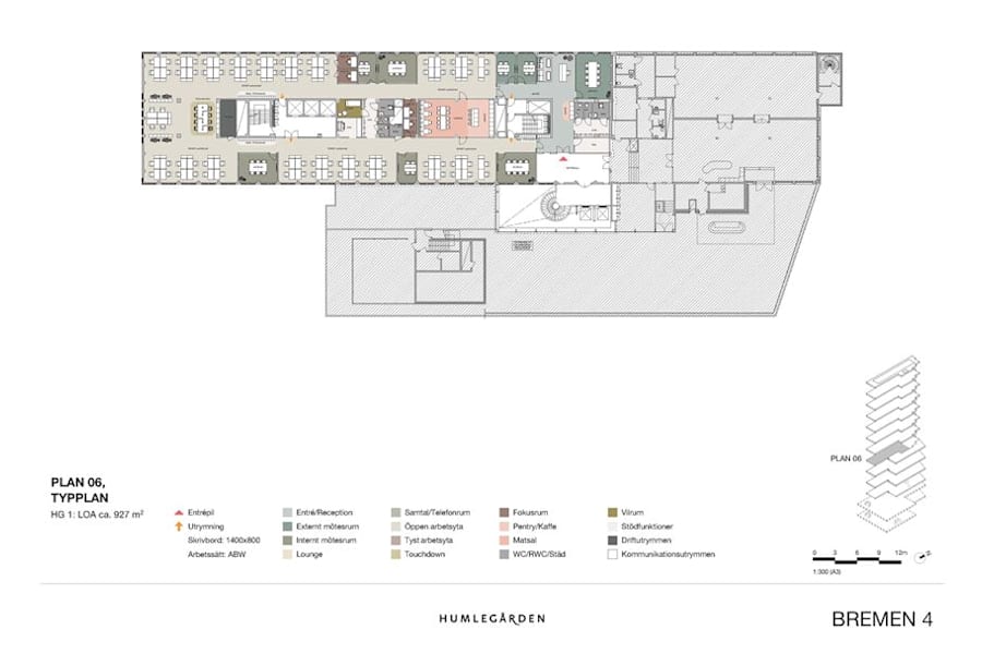
På plan 6 i Duoliten ligger denna härliga lokal om 927 kvm med dubbla entréer som öppnar upp till lounge och matsal. Här samsas ett öppet kontorslandskap med flexibla touchdown-platser och mötesrum i varierande storlek. På samma våningsplan finns generösa gemensamma ytor, stort konferensrum och en inbjudande takterrass med pergola och bar perfekt för framtidens soliga luncher och mysiga AWs.
Bekvämligheter
Runt knuten väntar tennishallar, bad, gym, löpspår och det grönskande Gärdet. Kvarteren bjuder även på ett varierat utbud av restauranger för både lunchpauser och kvällshäng.
Omgivning
Duoliten har en attraktiv adress i början av Tegeluddsvägen på gränsen mellan Gärdet och Stockholms Hamnkvarter. De senaste 100 åren har området omvandlats från kunglig jaktmark till en dynamisk stadsdel för arbete och boende. Funkisarkitektur möter modern stadsutveckling i en miljö där kontraster bidrar till områdets unika karaktär.
Kommunikationer
Att ta sig till och från Duoliten är enkelt med smidig tillgång till både kollektivtrafik och stora trafikleder. Gärdets tunnelbanestation och närliggande busshållplatser ligger bara några minuter bort. För bilpendlare finns garage i två plan under huset. Närheten till Lidingövägen, Hjorthagsvägen och Norra länken gör det lätt att ta sig hit från flera håll.
Vill du ta bilen till jobbet men slippa äga en? Tjänster som Hyre och KINTO Share gör det möjligt.