Letar ni efter ett större kontor där ni kan forma lokalerna helt efter verksamhetens behov? Här finns möjlighet att slå ihop flera sammanhängande lokaler och skapa en flexibel yta - upp tilll 1 700 kvm.
Lokalerna erbjuder flera entréer, vilket gör det enkelt att exempelvis skilja på intern och extern entré.
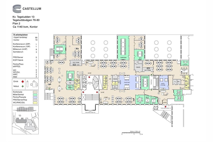
Planlösningen som är presenterad är ett förslag och vi anpassar efter era behov.
Här har du bussförbindelser direkt utanför entrén, nära till t-banan, SATS i grannhuset och gott om restauranger. Även i vårt grannhus finns Eatery där man också kan boka externa konferensrum vid behov.
Kontakta oss för visning för själva se möjligheterna på plats.
Våningsplan: 1
Planlösning: En modern och anpassningsbar arbetsplats för företag som vill skapa en effektiv och trivsam kontorsmiljö.
Omgivning
Omgivning/natur: Gärdet är ett av Stockholms mest attraktiva områden för företag som värdesätter närhet till både city och natur. Här kombineras ett lugnt och representativt läge med utmärkta kommunikationer och ett växande utbud av service.
Området präglas av öppna grönområden, god tillgång till parkeringsmöjligheter och närhet till både tunnelbana och busslinjer. Samtidigt finns ett starkt kluster av etablerade aktörer inom media, kommunikation och offentlig sektor – vilket skapar goda förutsättningar för samverkan och nätverkande.
Med sitt strategiska läge mellan city, Djurgården och Norra Djurgårdsstaden erbjuder Gärdet en arbetsmiljö som kombinerar tillgänglighet, trygghet och hög kvalitet – perfekt för verksamheter med höga krav på både funktion och profil.
Närservice: Ett kontorsläge som gör arbetsdagen lite bättre – varje dag.
I direkt närhet finns ett brett utbud av restauranger som passar både affärsluncher och snabba pauser. Med SATS som granne har du tillgång till förstklassig träning precis intill kontoret – perfekt för att hålla energin uppe.
Gärdet erbjuder en unik kombination av stadspuls och grönska. Här kan du ta en uppfriskande joggingrunda på lunchen, nyttja det populära utegymmet eller ta ett dopp i Kampementsbadet – bara 200 meter bort.
Det här är en arbetsmiljö som främjar både produktivitet och välmående. Välkommen till en plats där företag trivs och medarbetare mår bra.