Egen entré från gatan och centralt läge Välkommen till en karaktärsfull lokal på 233 kvm i hjärtat av Vasastan, perfekt för er som söker ett kombinerat kontor och showroom. Med en egen entré direkt från gatan, ett fantastiskt läge och en rimlig hyra, får ni här en svårslagen möjlighet att skapa er nästa drömarbetsplats.
Representativt och välkomnande direkt från gatan, vilket stärker er profil och bygger varumärke.
Placerad i vibrerande kvarter med högklassig service och restauranger runt hörnet.
Kostnadseffektiva ytor i ett av Stockholms mest eftertraktade områden.
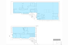
Flexibel yta för showroom och kontor: Den blandade planlösningen med 65 kvm i gatuplan och 168 kvm i källarplan ger er stor flexibilitet. Lokalen, som är i gott skick, passar utmärkt för att kombinera ett representativa arbetsplatser eller kundmottagning i entréplanet med mötesrum, showroom eller lager en trappa ner.
Levande Vasastan med smidiga kommunikationer: Ni tar plats i en dynamisk del av Vasastan med Odengatans och Roslagsgatans rika utbud av restauranger och service direkt runt hörnet, samt Vanadislunden på promenadavstånd. Kommunikationerna är utmärkta med tunnelbana (Rådmansgatan och Odenplan) och innerstadsbussar bara minuter bort. Tillträde kan dessutom ske inom kort.
Kom gärna på visning!
På gatuplan, fördelat på 65 kvm, finns två arbetsrum samt en wc. En trappa ner fortsätter lokalen med en större öppen yta med takfönster, fyra rum för möten/fokus samt två duschar. Pentryt är centralt placerat i den öppna ytan.: 2 wc på nedre plan.
Ekonomi
Kontraktstyp: Första hand Kontraktslängd: Tre år eller mer Uppvärmning: 100 Deposition: Bankgaranti/deposition 3-6 månadshyror
Bekvämligheter
Internet: Fiber finns framdraget, Ni tar plats i en dynamisk del av Vasastan med Odengatans och Roslagsgatans rika utbud av restauranger och service direkt runt hörnet, samt Vanadislunden på promenadavstånd. Kommunikationerna är utmärkta med tunnelbana (Rådmansgatan och Odenplan) och innerstadsbussar bara minuter bort. Tillträde kan dessutom ske inom kort.