Nu finns möjligheten att etablera er verksamhet i attraktiva lokaler mitt i Vallentuna Centrum. Här sitter ni med närhet till service, handel, restauranger och all tänkbar vardagsservice ett perfekt läge för både medarbetare och besökare.
Kommunikationerna är mycket goda med Roslagsbanan som tar er till Stockholm Östra på ca 30 minuter samt flera busslinjer i direkt anslutning. För den som pendlar med bil finns goda parkeringsmöjligheter i området.
Fastigheten genomgår just nu en omfattande upprustning, vilket ger er en unik möjlighet att flytta in i helt nyrenoverade, moderna och fräscha lokaler. Planlösningen anpassas i dialog med er som hyresgäst, vilket innebär att ni har goda möjligheter att påverka utformning och layout efter verksamhetens behov.
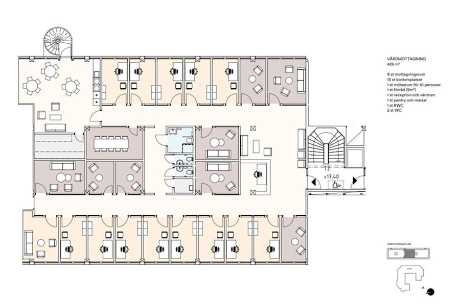
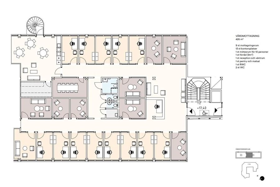
Lokalerna lämpar sig mycket väl för såväl kontorsverksamhet som vård- och behandlingsverksamhet, med möjlighet att skapa en funktionell och välkomnande miljö för både personal och patienter.
Här skapar vi effektiva och trivsamma arbetsplatser med fokus på kvalitet, flexibilitet och långsiktighet.
Välkommen att kontakta oss för mer information eller för att boka en visning!
Omgivning
Fastigheten ligger mitt i Vallentuna centrum. Detta är Vallentuna kommuns centrum hjärta. Här finner man flera olika matbutiker och restauranger. Det finns flera oilka affärer och även bowlinghall.
Ca 1 minuts promenad från Vallentuna station och Roslagsbanan som tar dig till Östermalm på 30 minuter. Buss 610 mellan Danderyds sjukhus och Vallentuna stannar utanför. Fastigheten ligger mitt i Vallentuna centrum. Här finns förutom ICA, Coop och Systembolaget även restaunger som Bores, Misoras Sushi och Brödernas.
Fastighet
Fastigheten är ett 3 vånings hus med butikslokaler i markplan. Det finns hiss och trapphus vid varje port.