Mitt på Vasagatan, ett stenkast från Stockholm Centralstation och Arlanda Express, ligger en av Stockholms mest lättillgängliga arbetsplatser med 17 000 kvadratmeter kontor och konferens under samma tak. Här hittar du kontorslösningar med anpassningsbara ytor och för både små och riktigt stora företag. I en historisk anläggning med ett svårslaget läge garanterar vi att ditt företag har möjlighet att expandera – utan att behöva byta adress.
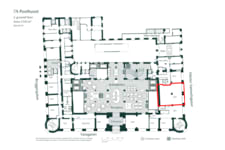
Denna kontorsyta på 148 kvm på Posthusets entréplan rymmer upp till 40 medarbetare, och de flexibla utrymmen möjliggör skräddarsydda lösningar för dig och dina kollegor. Kontoret omges av flera sociala, ytor och du har också tillgång till två takterrasser med härlig utsikt mot city. På våningsplanet finns ett fullt utrustat kök samt kostnadsfria mötes- och telefonrum. Utöver kontorsrummet delas utrymmet med trevliga kontorsgrannar och du har även tillgång till fastighetens största lounge på 750 kvm. Kontoret finns tillgängligt från och med juni 2024.
Som hyresgäst på 7A är du och dina medarbetare alltid välkomna till alla våra fyra anläggningar för att boka ett mötesrum, jobba i loungen eller börja dagen med våra populära frukostmingel. Välj det läge som passar dig bäst för dagen eller där du är närmast dina kunder – Strandvägen, Odenplan eller Vasagatan.
Vi har även ett stort utbud av konferenslokaler i varierande storlekar och miljöer. Här kan du arrangera allt från styrelsemöten, utbildningar och workshops till videokonferenser och livestreamade studioevent.