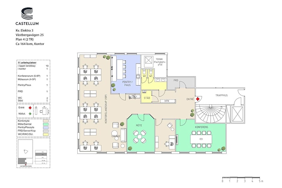
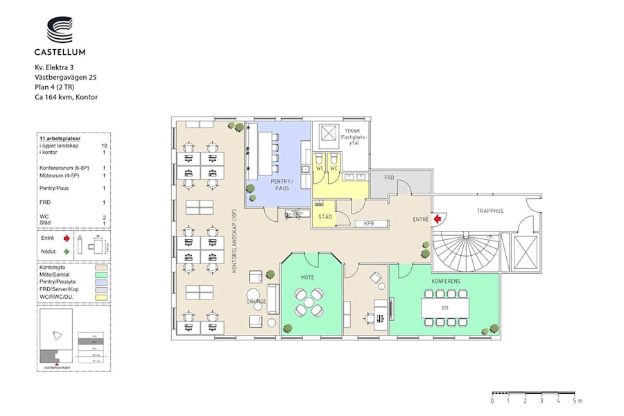
Välkommen till en ljus och välplanerad lokal om cirka 164 kvm med en genomtänkt och flexibel planlösning. Här möts du av ett öppet kontorslandskap, separata mötesrum samt en generös konferensdel som skapar goda förutsättningar för både samarbete och avskilt arbete.
Läget erbjuder ett brett serviceutbud och goda kommunikationer. I närheten finns Västberga Handel med ett varierat utbud av handel och service. För dig som pendlar med bil nås både E4 och E20 snabbt via smidig påfart. I fastigheten finns restaurangen Spiskroken som serverar varierade luncher med salladsbuffé och erbjuder en trevlig takterrass där ni kan avnjuta er lunch.
Välkommen att boka visning!
Ekonomi
Tillträde: Enligt överenskommelse.
Utförande
Våningsplan: 2
Omgivning
Omgivning/natur: Fastigheten är belägen i Västberga industriområde, ett av Stockholms centrala industriområde som ligger öster om E4/E20 vid Stockholms södra infart och södra Stockholms viktigaste godsterminal.
I området finns Västberga Handel som inrymmer Stora Coop, Rusta och Cykloteket samt att det i industriområdet finns flertalet lunchrestauranger.
Parkeringsmöjligheter/garage: Här finns det parkeringsplatser att hyra.