Perfekt för er som söker ett modernt höglager med förstklassiga kontorsytor och ett optimalt logistikläge. Denna lokal om totalt 5 058 kvm erbjuder allt från generösa lagerytor till ett representativt showroom – beläget med direkt anslutning till motorväg i populära Larsfrid industriområde.
Lager i toppklass:
Kontor och showroom:
Byggnaden är delvis inhägnad och det finns uppställningsplats samt fri parkering på fastigheten.
Strategiskt läge: Industriområdet Larsfrid ligger endast 3 kilometer söder om centrala Halmstad och utgör ett optimalt logistikläge i direkt anslutning till E6/E20, nära Halmstad hamn samt vid knutpunkten för riksväg 15, 25 och 26. Högskoleområdet erbjuder ett brett serviceutbud av butiker och restauranger. Det finns goda kollektivtrafikförbindelser med buss till centrala Halmstad.
Kontakta oss gärna för mer information eller visning!
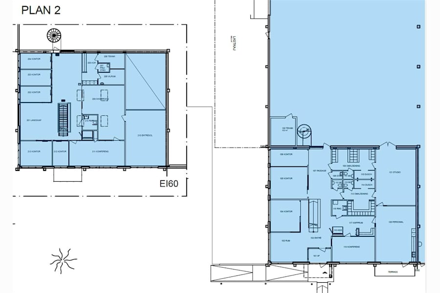
Ytor/Planlösning
Se planritning bland bilder/PDF.
Ekonomi
Kontraktlängd: Förhandlingsbart
Kontrakttyp: Förstahandskontrakt
Tillträde: Enligt överenskommelse.
Utförande
Fastighetsbeteckning: Fogden 6
Byggår: 1973
Renoveringsår: 2020
Takhöjd: 8 m
Omgivning
Företag i närheten: Lidl, Snabbgross, Derome, Biltema Logistics AB och Access Logistics
Parkeringsmöjligheter/garage: Fri parkering
Skyltläge: Bra exponering av skyltläge mot Västervallvägen
Vägbeskrivning: Direkt anslutning till E6/E20 och riksväg 15/25/26
Kommunikationer
e minut från Halmstad C och tar endast 10 minuter, alternativt färdsätt med cykel tar också 10 minuter från centrala Halmstad.